

仲介手数料無料+礼金0キャンペーン中です。
※キャンペーン内容は売買、賃貸、お部屋により異なります。
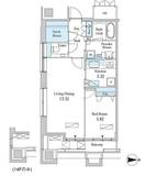
備考:
【駐車場】
普通車:15台 47,000円/月額(税別) 全長5,300mm・全幅2,050mm・全高1,550mm・重量2,300kg
ハイルーフ:15台 55,000円/月額(税別) 全長5,300mm・全幅2,050mm・全高2,000mm・重量2,300kg※最低地上高9cm
【バイク置き場】2台
【駐輪場】50台
【共用施設】
・コンシェルジュサービス(8時~22時)
・ラウンジ(14階) ※駐輪場・バイク置き場・駐車場の空き状況等詳細につきましてはお問い合わせください。
エレベーター,オートロック,宅配ボックス,TVドアホン,トランクルーム,駐車場,大型駐車場,バイク置き場,駐輪場,ラウンジ,コンシェルジュ,敷地内ゴミ置き場,各階ゴミ置き場,内廊下,オール電化,24時間管理,防犯カメラ,BS,CS,CATV,インターネット,閑静な住宅街
※掲載情報が現況と異なる場合は、現況を優先させていただきます。
※キャンペーン情報は予告なく変更・終了する場合がございます。詳細はお問い合わせください。
※部屋により敷金・礼金・キャンペーンの内容が異なる場合がございますので、詳しい情報は各部屋ページにてご確認ください。
※分譲賃貸は部屋によって所有者が異なる為、内装や設備が変更されている場合がございます。
※ペットの飼育やSOHO利用に関しては、建物自体が許可を出していても、所有者の意向により禁止とされている場合もございますのでご注意ください。
(30代/女性/1LDK)
2020/08/30
少し歩くと飲食店街があるが物件周辺は静かで過ごしやすそう。
共用部の設備もしっかりしていて受付もあったので安心。
室内も広く、食洗機やディスポーザーもあり満足です。
(40代/男性/1LDK)
2015/06/09
パーキングがあったのが決め手です。
窓が小さく、間取りが66㎡の割に少し狭く感じました。
※これらの口コミは、ご成約者様や営業スタッフによる主観的な意見や感想です。建物の価値を客観的に評価するものではありません。あくまでも一つの参考としてご活用ください。
空室確認・内覧予約・空き待ちをご希望のお客様は、こちらよりお気軽にお問い合わせください。
03-6890-7755