

エレベーター,オートロック,宅配ボックス,TVドアホン,敷地内ゴミ置き場,防犯カメラ,BS,CS,CATV,インターネット
※掲載情報が現況と異なる場合は、現況を優先させていただきます。
※キャンペーン情報は予告なく変更・終了する場合がございます。詳細はお問い合わせください。
※部屋により敷金・礼金・キャンペーンの内容が異なる場合がございますので、詳しい情報は各部屋ページにてご確認ください。
※分譲賃貸は部屋によって所有者が異なる為、内装や設備が変更されている場合がございます。
※ペットの飼育やSOHO利用に関しては、建物自体が許可を出していても、所有者の意向により禁止とされている場合もございますのでご注意ください。
林田(男性)
2020/11/11
大江戸線東新宿駅から徒歩3分の場所に物件はございます。
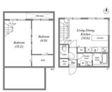
お部屋は、1Rタイプと1LDKタイプのラインナップになります。
私がご案内を実施したお部屋は1Rタイプになり、壁はコンクリート打ちっぱなしになっておりデザイナーズを感じさせるお部屋です。
収納スペースも大きく、居室を広くお使い頂ける仕様です。新宿駅までも徒歩圏内ですので、多方面へのアクセスを重視される方にはオススメです。
近隣には公園や新宿御苑もございますので都心ながらも休日には自然を感じることができリフレッシュするには丁度いい環境です。
※これらの口コミは、ご成約者様や営業スタッフによる主観的な意見や感想です。建物の価値を客観的に評価するものではありません。あくまでも一つの参考としてご活用ください。
空室確認・内覧予約・空き待ちをご希望のお客様は、こちらよりお気軽にお問い合わせください。
03-6890-7755