

備考:
【駐車場】
平置き1台無料付帯、1部住のみ2台利用可能
入居者用(自走式)68台、ゲスト用3台
【バイク置き場】
7台
【駐輪場】
104台(各住戸2台無料)
【トランクルーム】
45台(各住戸1室利用料無料)
【共用施設】
・コンシェルジュサービス
・スポーツジム
※駐輪場・バイク置き場・駐車場の空き状況等詳細につきましてはお問い合わせください。
エレベーター,オートロック,宅配ボックス,TVドアホン,トランクルーム,ペット足洗い場,駐車場,大型駐車場,バイク置き場,駐輪場,ラウンジ,コンシェルジュ,フィットネスジム,敷地内ゴミ置き場,各階ゴミ置き場,内廊下,24時間管理,防犯カメラ,BS,CS,CATV,インターネット,バリアフリー,閑静な住宅街,楽器可
※掲載情報が現況と異なる場合は、現況を優先させていただきます。
※キャンペーン情報は予告なく変更・終了する場合がございます。詳細はお問い合わせください。
※部屋により敷金・礼金・キャンペーンの内容が異なる場合がございますので、詳しい情報は各部屋ページにてご確認ください。
※分譲賃貸は部屋によって所有者が異なる為、内装や設備が変更されている場合がございます。
※ペットの飼育やSOHO利用に関しては、建物自体が許可を出していても、所有者の意向により禁止とされている場合もございますのでご注意ください。
石川(男性)
2016/10/08
当日は天気も良く、最寄りの代々木公園から歩いて向かいましたが、たまたま週末の土曜日でしたので、家族連れや愛犬家の方で代々木公園賑わっておりました。
その中でも、一際異彩を放っているのがご案内致しました当物件。
まさに超高級物件に相応しい立地と佇まいに、公園に向かう方もエントランスを横切る度に眼を引いておりました。
建物はジムやミーティングルームを兼ね揃え、四季に応じてエントランスや共用部の演出が変わる手の凝りようでした。
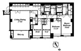
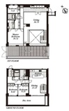
代々木公園を一望できるお部屋や、1階のお部屋ですとテラス付きのお部屋もあるようです。
また全駐車場が平置きというのも良い点でした。
※これらの口コミは、ご成約者様や営業スタッフによる主観的な意見や感想です。建物の価値を客観的に評価するものではありません。あくまでも一つの参考としてご活用ください。
空室確認・内覧予約・空き待ちをご希望のお客様は、こちらよりお気軽にお問い合わせください。
03-6890-7755