

仲介手数料無料+礼金0キャンペーン中です。
※キャンペーン内容は売買、賃貸、お部屋により異なります。
備考:
【駐車場】平置き4台 52,500円・54,600円/月額
ハイルーフ駐車可能
【バイク置き場】6台 8,400円/月額 敷金1ヶ月
【駐輪場】1住戸につき1台無料
※駐輪場・バイク置き場・駐車場の空き状況等詳細につきましてはお問い合わせください。
エレベーター,オートロック,宅配ボックス,TVドアホン,駐車場,バイク置き場,駐輪場,敷地内ゴミ置き場,各階ゴミ置き場,防犯カメラ,BS,CS,CATV,インターネット
※掲載情報が現況と異なる場合は、現況を優先させていただきます。
※キャンペーン情報は予告なく変更・終了する場合がございます。詳細はお問い合わせください。
※部屋により敷金・礼金・キャンペーンの内容が異なる場合がございますので、詳しい情報は各部屋ページにてご確認ください。
※分譲賃貸は部屋によって所有者が異なる為、内装や設備が変更されている場合がございます。
※ペットの飼育やSOHO利用に関しては、建物自体が許可を出していても、所有者の意向により禁止とされている場合もございますのでご注意ください。
村上(男性)
2015/10/18
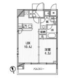
当物件は麻布十番駅よりわずか徒歩1分で到着し大変便利な場所にあります。駅より近い場所にあることから、麻布十番商店街にも近く周辺には様々な飲食店や立ち並び風情感じるエリアです。大通り沿いにある物件ですが室内は静かなお部屋です。お部屋の造りもデッドスペースがあまり出ない造りとなりバスルームも広く設けられ女性の方にオススメの物件です。
※これらの口コミは、ご成約者様や営業スタッフによる主観的な意見や感想です。建物の価値を客観的に評価するものではありません。あくまでも一つの参考としてご活用ください。
空室確認・内覧予約・空き待ちをご希望のお客様は、こちらよりお気軽にお問い合わせください。
03-6890-7755