

仲介手数料無料キャンペーン中です。
※キャンペーン内容は売買、賃貸、お部屋により異なります。
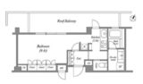
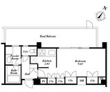
エレベーター,オートロック,宅配ボックス,TVドアホン,駐車場,駐輪場,敷地内ゴミ置き場,防犯カメラ,BS,CS,CATV,インターネット,閑静な住宅街
※掲載情報が現況と異なる場合は、現況を優先させていただきます。
※キャンペーン情報は予告なく変更・終了する場合がございます。詳細はお問い合わせください。
※部屋により敷金・礼金・キャンペーンの内容が異なる場合がございますので、詳しい情報は各部屋ページにてご確認ください。
※分譲賃貸は部屋によって所有者が異なる為、内装や設備が変更されている場合がございます。
※ペットの飼育やSOHO利用に関しては、建物自体が許可を出していても、所有者の意向により禁止とされている場合もございますのでご注意ください。
(40代/男性/1K)
2021/03/20
静かで過ごしやすそうな環境。
共用部や室内内装も良いと思います。
村上(男性)
2016/02/21
広尾駅から数分歩いた、天現寺交差点の一本奥に入った閑静な場所に位置します。2007年築となりますが管理が行き届き清潔感有るエントランスです。
内覧したお部屋は2階のお部屋でしたが、周辺には高い建物も無く陽の光が差し込む明るい印象を受けました。また周辺にはお洒落なお店が建ち並び週末などゆっくりとした時間を過ごせそうな環境だと感じました。
※これらの口コミは、ご成約者様や営業スタッフによる主観的な意見や感想です。建物の価値を客観的に評価するものではありません。あくまでも一つの参考としてご活用ください。
空室確認・内覧予約・空き待ちをご希望のお客様は、こちらよりお気軽にお問い合わせください。
03-6890-7755