

備考:
【駐車場】平置き 52,500円/月額
【駐輪場】無料
【ペット】小型犬または猫1匹(飼育時敷金1ヶ月積み増し)
【SOHO】用法・用途等の利用制限有り(敷金1ヶ月積み増し) ※駐輪場・バイク置き場・駐車場の空き状況等詳細につきましてはお問い合わせください。
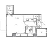
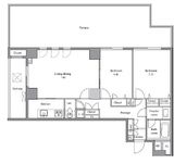
エレベーター,オートロック,宅配ボックス,TVドアホン,駐車場,駐輪場,敷地内ゴミ置き場,防犯カメラ,BS,CS,CATV,インターネット
※掲載情報が現況と異なる場合は、現況を優先させていただきます。
※キャンペーン情報は予告なく変更・終了する場合がございます。詳細はお問い合わせください。
※部屋により敷金・礼金・キャンペーンの内容が異なる場合がございますので、詳しい情報は各部屋ページにてご確認ください。
※分譲賃貸は部屋によって所有者が異なる為、内装や設備が変更されている場合がございます。
※ペットの飼育やSOHO利用に関しては、建物自体が許可を出していても、所有者の意向により禁止とされている場合もございますのでご注意ください。
(40代/男性/1R)
2021/07/04
景観の良さで決めました。
営業担当の方のきめ細やかなご対応に感謝しています。
(40代/女性/1R)
2015/06/30
実際に内覧してみて、駅に近く環境も良さそうだった。
建物共用部は普通、設備や内装はシンプルだった。
仕事場および電車の便、部屋の広さが希望に適していた。
※これらの口コミは、ご成約者様や営業スタッフによる主観的な意見や感想です。建物の価値を客観的に評価するものではありません。あくまでも一つの参考としてご活用ください。
空室確認・内覧予約・空き待ちをご希望のお客様は、こちらよりお気軽にお問い合わせください。
03-6890-7755