

仲介手数料無料+礼金0キャンペーン中です。
※キャンペーン内容は売買、賃貸、お部屋により異なります。
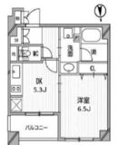
備考:
【駐車場】機械式47,250円/月額
全長5,050mm・全幅1,800mm・全高1,550mm・重量2,000kg
【駐輪場】1住戸につき1台無料
【ペット】小型犬または猫1匹(飼育時敷金1ヶ月積み増し)
※駐輪場・バイク置き場・駐車場の空き状況等詳細につきましてはお問い合わせください。
エレベーター,オートロック,宅配ボックス,TVドアホン,駐車場,駐輪場,ラウンジ,敷地内ゴミ置き場,防犯カメラ,BS,CS,CATV,インターネット
※掲載情報が現況と異なる場合は、現況を優先させていただきます。
※キャンペーン情報は予告なく変更・終了する場合がございます。詳細はお問い合わせください。
※部屋により敷金・礼金・キャンペーンの内容が異なる場合がございますので、詳しい情報は各部屋ページにてご確認ください。
※分譲賃貸は部屋によって所有者が異なる為、内装や設備が変更されている場合がございます。
※ペットの飼育やSOHO利用に関しては、建物自体が許可を出していても、所有者の意向により禁止とされている場合もございますのでご注意ください。
(20代/女性/1DK)
2018/07/28
きれいな物件だが眺望があまり良くなかった。
立地と間取りが気に入った。
大賀(男性)
2016/06/19
都営三田線・浅草線「三田駅」から徒歩3分で、桜田通りから一本中に入ったところに物件はございます。今回ご案内した居室は1LDKタイプのお部屋で、リビングとベッドールームには一基ずつエアコンが備わっており、フローリングカラーには落ち着いた色のブラウンを採用しております。三田駅周辺で探されている方には是非ご覧頂きたい物件です。
※これらの口コミは、ご成約者様や営業スタッフによる主観的な意見や感想です。建物の価値を客観的に評価するものではありません。あくまでも一つの参考としてご活用ください。
空室確認・内覧予約・空き待ちをご希望のお客様は、こちらよりお気軽にお問い合わせください。
03-6890-7755