

備考:
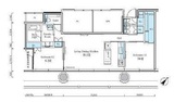
【駐車場】平置き:8台 63,000円/月額
全長6,000mm 全幅2,855mm 全高2,300mm
【バイク置き場】4台 10,500円/月額
【駐輪場】23台
【防災センター】有
【設計】 株式会社日建設計
【施工】 鹿島建設株式会社 ※駐輪場・バイク置き場・駐車場の空き状況等詳細につきましてはお問い合わせください。
エレベーター,オートロック,宅配ボックス,駐車場,大型駐車場,バイク置き場,駐輪場,敷地内ゴミ置き場,各階ゴミ置き場,内廊下,24時間管理,防犯カメラ,BS,CS,CATV,インターネット,バリアフリー
※掲載情報が現況と異なる場合は、現況を優先させていただきます。
※キャンペーン情報は予告なく変更・終了する場合がございます。詳細はお問い合わせください。
※部屋により敷金・礼金・キャンペーンの内容が異なる場合がございますので、詳しい情報は各部屋ページにてご確認ください。
※分譲賃貸は部屋によって所有者が異なる為、内装や設備が変更されている場合がございます。
※ペットの飼育やSOHO利用に関しては、建物自体が許可を出していても、所有者の意向により禁止とされている場合もございますのでご注意ください。
南条(男性)
2021/10/25
東京メトロ銀座線「赤坂見附駅」B口より徒歩3分、青山通り沿いに物件はございます。
重厚感のある外観、レジデンスフロアの共用廊下にあるガラス張りの中庭がとても印象的でした。
窓はハイサッシが採用され開放感がございました。
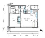
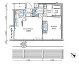
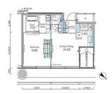
ご案内した北東向き18階1LDKのお部屋からはホテルニューオータニの日本庭園を望むことができとても眺望が良かったです。
※これらの口コミは、ご成約者様や営業スタッフによる主観的な意見や感想です。建物の価値を客観的に評価するものではありません。あくまでも一つの参考としてご活用ください。
空室確認・内覧予約・空き待ちをご希望のお客様は、こちらよりお気軽にお問い合わせください。
03-6890-7755