

備考:
【バイク置き場】2台 5,000円/月額(税別)
【駐輪場】22台 500円/月額(税別)
【インターネット】使用料無料 ※駐輪場・バイク置き場・駐車場の空き状況等詳細につきましてはお問い合わせください。
オートロック,宅配ボックス,TVドアホン,バイク置き場,駐輪場,敷地内ゴミ置き場,防犯カメラ,BS,CS,CATV,インターネット,閑静な住宅街
※掲載情報が現況と異なる場合は、現況を優先させていただきます。
※キャンペーン情報は予告なく変更・終了する場合がございます。詳細はお問い合わせください。
※部屋により敷金・礼金・キャンペーンの内容が異なる場合がございますので、詳しい情報は各部屋ページにてご確認ください。
※分譲賃貸は部屋によって所有者が異なる為、内装や設備が変更されている場合がございます。
※ペットの飼育やSOHO利用に関しては、建物自体が許可を出していても、所有者の意向により禁止とされている場合もございますのでご注意ください。
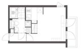
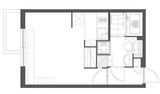
(30代/男性/1LDK)
2020/11/15
想像していたよりも明るく広いお部屋だと思いました。
キャットウォークやステップ、猫用ドア等嬉しい設備が多く満足しています。
福島(男性)
2020/11/16
小田急線「代々木八幡駅」徒歩3分の駅近物件です。また「代々木公園駅」「代々木上原駅」も徒歩圏内で、複数路線の利用が可能です。
物件はオシャレなデザイナーズ物件です。この物件の魅力はペットとの暮らしを充実させてくれるところにあります。
希少な猫3匹まで飼育可能なところに加え、室内には猫専用トイレや、キャットウォークがありました。猫を飼われているお客様にとってはこれ以上の物件はないのではないでしょうか。
※これらの口コミは、ご成約者様や営業スタッフによる主観的な意見や感想です。建物の価値を客観的に評価するものではありません。あくまでも一つの参考としてご活用ください。
空室確認・内覧予約・空き待ちをご希望のお客様は、こちらよりお気軽にお問い合わせください。
03-6890-7755