

仲介手数料無料キャンペーン中です。
※キャンペーン内容は売買、賃貸、お部屋により異なります。
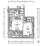
エレベーター,オートロック,宅配ボックス,TVドアホン,駐輪場,防犯カメラ,BS,CS,CATV,インターネット
※掲載情報が現況と異なる場合は、現況を優先させていただきます。
※キャンペーン情報は予告なく変更・終了する場合がございます。詳細はお問い合わせください。
※部屋により敷金・礼金・キャンペーンの内容が異なる場合がございますので、詳しい情報は各部屋ページにてご確認ください。
※分譲賃貸は部屋によって所有者が異なる為、内装や設備が変更されている場合がございます。
※ペットの飼育やSOHO利用に関しては、建物自体が許可を出していても、所有者の意向により禁止とされている場合もございますのでご注意ください。
(30代/女性/1DK)
2023/02/18
部屋、共用部いずれも綺麗で使いやすそうな間取りで、窓も複数あって明るいです。駅から近く立地が良い点も気に入りました。
(50代/男性)
2021/06/26
通りから離れていたので静かでした。
防音窓がよく、WICやキッチンも使いやすそうでした。
同じ価格帯の部屋と比べて設備や内装がいいように思えました。
営業さんはメールのレスポンスが早く、入居開始日などの交渉をしていただき、非常に助かりました。
須賀(男性)
2019/03/12
アクセスが良好な「神田駅」から徒歩4分の場所にございます。
マンションからは様々な駅に徒歩圏でアクセスが可能ですので、様々な方面への移動にとても便利だと感じました。
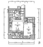
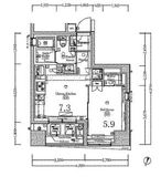
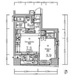
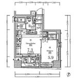
物件は1K~1LDKの間取りがメインです。
収納も各タイプ広々としている印象です。
統一された清潔感のあるフローリングや水回りが高級感のある仕様に感じました。
※これらの口コミは、ご成約者様や営業スタッフによる主観的な意見や感想です。建物の価値を客観的に評価するものではありません。あくまでも一つの参考としてご活用ください。
空室確認・内覧予約・空き待ちをご希望のお客様は、こちらよりお気軽にお問い合わせください。
03-6890-7755