エスタート品川南大井 成約済み物件 (6061-1402)

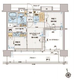
  • エスタート品川南大井 1402 間取り図
  • エスタート品川南大井 画像
  • エスタート品川南大井 シューズボックス
  • エスタート品川南大井 玄関
  • エスタート品川南大井 室内
  • エスタート品川南大井 部屋
建物詳細ページを見る

物件概要

物件名
エスタート品川南大井
賃料
---円
共益費/
管理費
---円
敷金
---ヶ月
礼金
---ヶ月
仲介
手数料
---ヶ月
フリー
レント
---ヶ月
その他費用
---
間取り
2LDK+WIC
(LDK12.7帖,洋室5帖,洋室4帖)
専有面積
43.4m2
所在階/
総階数
14階/地上14階 
入居
可能時期
---
情報登録日
2018年11月29日
情報更新日
2025年8月7日
所在地
東京都品川区南大井3-25-9地図
交通
京急本線大森海岸駅」徒歩3分
JR京浜東北線大森駅」徒歩7分


問合番号
6061-1402
物件特徴
なし
更新料
---ヶ月
築年月
2018年12月
総戸数
203戸
建物構造
RC造
保険
要加入
保証会社
利用必須
方角
契約形態
普通賃貸借契約
ペット
不可 
SOHO・
事務所
不可 
取引態様
媒介

備考:

more

建物設備

エレベーター,オートロック,宅配ボックス,TVドアホン,駐車場,バイク置き場,駐輪場,敷地内ゴミ置き場,防犯カメラ,BS,CS,CATV,インターネット

部屋設備

独立洗面台,追い焚き,ウォシュレット,浴室乾燥機,カウンターキッチン,ガスコンロ,エアコン,ウォークインクローゼット,ダブルロックキー,フローリング,ルーフバルコニー,角部屋,最上階,南向き

募集中住戸一覧

17室表示

その他14件を表示

チェックした部屋について

問い合わせる 検討中リストに追加

※掲載情報が現況と異なる場合は、現況を優先させていただきます。
※キャンペーン情報は予告なく変更・終了する場合がございます。詳細はお問い合わせください。
※部屋により敷金・礼金・キャンペーンの内容が異なる場合がございますので、詳しい情報は各部屋ページにてご確認ください。
※分譲賃貸は部屋によって所有者が異なる為、内装や設備が変更されている場合がございます。
※ペットの飼育やSOHO利用に関しては、建物自体が許可を出していても、所有者の意向により禁止とされている場合もございますのでご注意ください。

おすすめ物件情報

最近見た物件

閉じる

検討中リストに追加しました。

ページ上部の検討中リストより、追加した部屋情報が確認できます。

ページ上部の検討中リストより、追加した部屋情報が確認できます。