

備考:
【駐車場】平置き式 70,000円~/月額
全長:5830mm 全幅:2330mm
【バイク置き場】有
【駐輪場】有
【コンシェルジュサービス】
来訪者の受付・案内
共用施設の予約
宅配便の一時預かりサービス
タクシー手配サービス
クリ―ニング取次サービス
各業者紹介サービス
メッセージ預かり
【共用施設】
・ラウンジ
・フィットネスルーム ※駐輪場・バイク置き場・駐車場の空き状況等詳細につきましてはお問い合わせください。
エレベーター,オートロック,宅配ボックス,TVドアホン,トランクルーム,駐車場,大型駐車場,バイク置き場,駐輪場,ラウンジ,コンシェルジュ,フィットネスジム,敷地内ゴミ置き場,各階ゴミ置き場,内廊下,24時間管理,防犯カメラ,BS,CS,CATV,インターネット
※掲載情報が現況と異なる場合は、現況を優先させていただきます。
※キャンペーン情報は予告なく変更・終了する場合がございます。詳細はお問い合わせください。
※部屋により敷金・礼金・キャンペーンの内容が異なる場合がございますので、詳しい情報は各部屋ページにてご確認ください。
※分譲賃貸は部屋によって所有者が異なる為、内装や設備が変更されている場合がございます。
※ペットの飼育やSOHO利用に関しては、建物自体が許可を出していても、所有者の意向により禁止とされている場合もございますのでご注意ください。
村上(男性)
2016/12/22
東京メトロ日比谷線「東銀座駅」5番出口より萬年橋を渡った直ぐ先に物件は位置します。
当物件は18階まではオフィスが入っており、晴海通りの裏手にレジデンスの入口がございます。
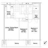
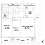
ご案内したのは3LDKの角部屋です。広いリビングは一面がFIX窓となっており、とても明るく開放的でした。
キッチンはコの字型で作業効率も良く、コーナー部分も広くスペースがあり非常に使い易い仕様となっております。
その他にもトイレが3箇所、浴室も2箇所ありファミリーの方に喜ばれるお部屋でした。
※これらの口コミは、ご成約者様や営業スタッフによる主観的な意見や感想です。建物の価値を客観的に評価するものではありません。あくまでも一つの参考としてご活用ください。
空室確認・内覧予約・空き待ちをご希望のお客様は、こちらよりお気軽にお問い合わせください。
03-6890-7755