

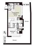
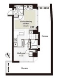
エレベーター,オートロック,宅配ボックス,TVドアホン,駐輪場,敷地内ゴミ置き場,内廊下,防犯カメラ,BS,CS,CATV,インターネット,閑静な住宅街
※掲載情報が現況と異なる場合は、現況を優先させていただきます。
※キャンペーン情報は予告なく変更・終了する場合がございます。詳細はお問い合わせください。
※部屋により敷金・礼金・キャンペーンの内容が異なる場合がございますので、詳しい情報は各部屋ページにてご確認ください。
※分譲賃貸は部屋によって所有者が異なる為、内装や設備が変更されている場合がございます。
※ペットの飼育やSOHO利用に関しては、建物自体が許可を出していても、所有者の意向により禁止とされている場合もございますのでご注意ください。
齋藤(男性)
2020/08/07
表参道駅を出てお洒落なカフェや飲食店が立ち並ぶエリアから一本奥まった住宅街にありますので、騒音等の心配はございませんでした。
外観・共用部はダークカラーを基調としたシックなデザインで高級感を演出しており、お部屋にはビルトイン食洗機やディスポーザー、ミストサウナなど分譲マンションならではの設備が整っておりました。
ビジネスやプライベートでも多様なライフスタイルに対応した物件です。
※これらの口コミは、ご成約者様や営業スタッフによる主観的な意見や感想です。建物の価値を客観的に評価するものではありません。あくまでも一つの参考としてご活用ください。
空室確認・内覧予約・空き待ちをご希望のお客様は、こちらよりお気軽にお問い合わせください。
03-6890-7755
