

仲介手数料無料+礼金0キャンペーン中です。
※キャンペーン内容は売買、賃貸、お部屋により異なります。
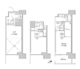
備考:
【駐車場】B1・2F部分42,000円/月額(税別)、1F部分45,000円/月額(税別)
【駐輪場】無料 ※駐輪場・バイク置き場・駐車場の空き状況等詳細につきましてはお問い合わせください。
エレベーター,オートロック,宅配ボックス,TVドアホン,駐車場,駐輪場,敷地内ゴミ置き場,24時間管理,防犯カメラ,BS,CS,CATV,インターネット,閑静な住宅街
※掲載情報が現況と異なる場合は、現況を優先させていただきます。
※キャンペーン情報は予告なく変更・終了する場合がございます。詳細はお問い合わせください。
※部屋により敷金・礼金・キャンペーンの内容が異なる場合がございますので、詳しい情報は各部屋ページにてご確認ください。
※分譲賃貸は部屋によって所有者が異なる為、内装や設備が変更されている場合がございます。
※ペットの飼育やSOHO利用に関しては、建物自体が許可を出していても、所有者の意向により禁止とされている場合もございますのでご注意ください。
(30代/女性/1K)
2023/01/19
内装や周辺環境・立地が好みで良かったです。
メゾネットタイプが良かったので希望のお部屋が合って満足しています。
転職に合わせての引っ越しでいい場所が見つかって良かったです。
(40代/男性/1R)
2020/05/27
明るい部屋で使い勝手が良さそうだと思いました。
設備が充実していて、共有部も綺麗に管理されています。
(30代/男性/1K)
2020/01/27
ロフトがある物件で、吹き抜けが想像よりも解放感があって良かった。共有部はとても綺麗。職場までのアクセスも含め、総合的に良かったのでここに決めました。
※これらの口コミは、ご成約者様や営業スタッフによる主観的な意見や感想です。建物の価値を客観的に評価するものではありません。あくまでも一つの参考としてご活用ください。
空室確認・内覧予約・空き待ちをご希望のお客様は、こちらよりお気軽にお問い合わせください。
03-6890-7755