

エレベーター,オートロック,宅配ボックス,TVドアホン,駐車場,駐輪場,敷地内ゴミ置き場,防犯カメラ,BS,CS,CATV,インターネット
※掲載情報が現況と異なる場合は、現況を優先させていただきます。
※キャンペーン情報は予告なく変更・終了する場合がございます。詳細はお問い合わせください。
※部屋により敷金・礼金・キャンペーンの内容が異なる場合がございますので、詳しい情報は各部屋ページにてご確認ください。
※分譲賃貸は部屋によって所有者が異なる為、内装や設備が変更されている場合がございます。
※ペットの飼育やSOHO利用に関しては、建物自体が許可を出していても、所有者の意向により禁止とされている場合もございますのでご注意ください。
長澤(男性)
2024/02/29
ゆりかもめ「日の出駅」から徒歩5分、「竹芝駅」から徒歩10分ほどの立地に位置する分譲マンションです。
13階建て総住戸数53戸のこちらのマンションはエレベーターがエントランス左端、中央、右端と3箇所に分かれているため、忙しい朝の時間帯でもスムーズに行き来することができます。
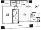
今回は最上階東向きの1LDKのお部屋をご案内しました。
玄関を開けると目に飛び込んでくるのはガラスパネル仕様のバルコニーです。
幅約7m、床材には木目調の板を使用したバルコニーからは壮大な東京湾の景色を一望することができ、お台場のフジテレビやレインボーブリッジまで鮮明にご覧いただけます。
更には浴室にも東向きの窓が開口されているため、潮騒に耳を傾けながらリラックスすることも可能です。
※これらの口コミは、ご成約者様や営業スタッフによる主観的な意見や感想です。建物の価値を客観的に評価するものではありません。あくまでも一つの参考としてご活用ください。
空室確認・内覧予約・空き待ちをご希望のお客様は、こちらよりお気軽にお問い合わせください。
03-6890-7755
