

仲介手数料無料+礼金0キャンペーン中です。
※キャンペーン内容は売買、賃貸、お部屋により異なります。
エレベーター,オートロック,宅配ボックス,TVドアホン,駐車場,バイク置き場,駐輪場,ラウンジ,敷地内ゴミ置き場,内廊下,防犯カメラ,BS,CS,CATV,インターネット
※掲載情報が現況と異なる場合は、現況を優先させていただきます。
※キャンペーン情報は予告なく変更・終了する場合がございます。詳細はお問い合わせください。
※部屋により敷金・礼金・キャンペーンの内容が異なる場合がございますので、詳しい情報は各部屋ページにてご確認ください。
※分譲賃貸は部屋によって所有者が異なる為、内装や設備が変更されている場合がございます。
※ペットの飼育やSOHO利用に関しては、建物自体が許可を出していても、所有者の意向により禁止とされている場合もございますのでご注意ください。
長澤(男性)
2024/04/19
東急田園都市線「三軒茶屋駅」から徒歩1分というこれ以上ないほどの立地にこちらの物件はございます。
築年数が少し気になるかと思いましたが流石伊藤忠アーバンコミュニティが手掛けるシリーズマンションシリーズのレジディア、古さなど微塵も感じさせない存在感がありました。
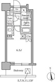
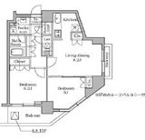
今回は9階1kタイプのお部屋をご案内しました。
7.5畳と少し広めくらいの畳数ですがデッドスペースが少なく、目一杯使える印象でした。
眺望も遮る建物がなく全戸南向きですので日当たりも抜群です。
ここまで揃っていながら手を出しやすい価格帯なのもおすすめポイントです。
木野内(女性)
2018/05/25
田園都市線「三軒茶屋駅」から物件へ向かいました。南出口を出てそのまま真っすぐ進むと1分も経たずに物件へ到着しました。ご案内をしたお部屋は高速道路とは反対側の上層階にあり、とても見晴らしが良く、陽の光もたくさん入ってくる明るいお部屋でした。また、高速道路の音なども全く気にならず、築年数が10年以上経っておりましたが、共用部が綺麗に保たれており古さもあまり気にならない物件でした。
※これらの口コミは、ご成約者様や営業スタッフによる主観的な意見や感想です。建物の価値を客観的に評価するものではありません。あくまでも一つの参考としてご活用ください。
空室確認・内覧予約・空き待ちをご希望のお客様は、こちらよりお気軽にお問い合わせください。
03-6890-7755