

備考:
【駐車場】6台 機械式地下2段地上1段 5台、身障者用平置駐車場1台
【駐輪場】71台 スライドラック式68台、平置ラック式3台 ※駐輪場・バイク置き場・駐車場の空き状況等詳細につきましてはお問い合わせください。
エレベーター,オートロック,宅配ボックス,TVドアホン,駐車場,大型駐車場,駐輪場,敷地内ゴミ置き場,防犯カメラ,BS,CS,CATV,インターネット
※掲載情報が現況と異なる場合は、現況を優先させていただきます。
※キャンペーン情報は予告なく変更・終了する場合がございます。詳細はお問い合わせください。
※部屋により敷金・礼金・キャンペーンの内容が異なる場合がございますので、詳しい情報は各部屋ページにてご確認ください。
※分譲賃貸は部屋によって所有者が異なる為、内装や設備が変更されている場合がございます。
※ペットの飼育やSOHO利用に関しては、建物自体が許可を出していても、所有者の意向により禁止とされている場合もございますのでご注意ください。
斎藤(男性)
2022/10/15
東京メトロ丸ノ内線「淡路町駅」、東京メトロ千代田線「新御茶ノ水駅」、都営新宿線「小川町駅」徒歩2分と好立地で、複数路線使える大変便利な場所です。
当物件の周辺はオフィス街で静かな印象を受け、とても住みやすいエリアですので、駅近くの物件を探している方におすすめです。
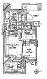
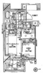
お部屋は1K、1LDK、2LDKの3タイプがございます。私がご案内した1Kのお部屋はブラウンを基調とし高級感と温かみがあるお部屋でございました。
キッチンスペースは広く取られており、使い勝手が良いキッチンです。
またトイレに鏡が付いてたり、水回りや収納もそこそこゆとりがあるものとなっています。あったら嬉しいポイントを抑えているお部屋だと感じました。
廊下は内廊下になっており黒を基調として落ち着いた空間になっております。各階に休息ブースも設置されておりリラックススペースとしても活用ができます。
※これらの口コミは、ご成約者様や営業スタッフによる主観的な意見や感想です。建物の価値を客観的に評価するものではありません。あくまでも一つの参考としてご活用ください。
空室確認・内覧予約・空き待ちをご希望のお客様は、こちらよりお気軽にお問い合わせください。
03-6890-7755
