トップへ戻る

ヴァンクール岩本町

ヴァンクール岩本町

物件概要を見る
  • 借りる(賃貸)
  • 買う(売買)

ヴァンクール岩本町の最寄り駅 平米単価の相場推移

岩本町駅 平米単価チャート

※当社掲載物件の賃料相場になります
※データがない場合は前後でデータを結んでいます

ヴァンクール岩本町

東京メトロ日比谷線「秋葉原駅」をはじめ、3駅6路線利用可能の好立地に誕生した高級賃貸マンション。他に「岩本町駅」「神田駅」が徒歩10分圏内にございます。新宿や渋谷、東京駅などのターミナル駅へもアクセスしやすく、様々なシーンで利便性を享受できる環境です。

物件は大通りから1本奥まった閑静な住環境。近隣にはコンビニエンスストアやスーパーマーケットが揃っており、日常の買い物に不便ありません。また、秋葉原駅周辺にはドン・キホーテや家電量販店等の商業施設が集結しており何かと便利です。

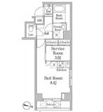
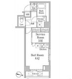
物件は1Kを中心としたシングル向けレジデンス。高層階には1LDKタイプもご用意。1Kタイプの住戸も、間取りによってはベッドも置ける広さのサービスルームを設置していますので、1LDKのようにお使い頂けます。

more
  • 借りる(賃貸)
  • 買う(売買)
募集中住戸一覧

0室表示

現在公開中の部屋情報がありません。
最新の情報はこちらからお問い合わせください。

ヴァンクール岩本町の最寄り駅 平米単価の相場推移

岩本町駅 平米単価チャート

※当社掲載物件の賃料相場になります
※データがない場合は前後でデータを結んでいます

ヴァンクール岩本町

東京メトロ日比谷線「秋葉原駅」をはじめ、3駅6路線利用可能の好立地に誕生した高級賃貸マンション。他に「岩本町駅」「神田駅」が徒歩10分圏内にございます。新宿や渋谷、東京駅などのターミナル駅へもアクセスしやすく、様々なシーンで利便性を享受できる環境です。

物件は大通りから1本奥まった閑静な住環境。近隣にはコンビニエンスストアやスーパーマーケットが揃っており、日常の買い物に不便ありません。また、秋葉原駅周辺にはドン・キホーテや家電量販店等の商業施設が集結しており何かと便利です。

物件は1Kを中心としたシングル向けレジデンス。高層階には1LDKタイプもご用意。1Kタイプの住戸も、間取りによってはベッドも置ける広さのサービスルームを設置していますので、1LDKのようにお使い頂けます。

more

物件概要

物件名
ヴァンクール岩本町
所在地
東京都千代田区岩本町3-4-11地図
交通
都営新宿線岩本町駅」徒歩3分
東京メトロ日比谷線秋葉原駅」徒歩5分
JR山手線秋葉原駅」徒歩8分
JR中央・総武線秋葉原駅」徒歩8分
JR山手線神田駅」徒歩9分
問合番号
4672
物件特徴
デザイナーズ
賃料
148,000円 - 151,000円
共益費/
管理費
0円 - 0円
間取り
1R - 1LDK
専有面積
25.54m2 - 44.92m2
築年月
2016年9月
総階数
地上10階 
総戸数
24戸
建物構造
RC造
通学エリア
小学校
和泉小学校
取引態様
媒介

備考:

【駐輪場】11台 200円/月額(税別) ※駐輪場・バイク置き場・駐車場の空き状況等詳細につきましてはお問い合わせください。

more

建物設備

エレベーター,オートロック,宅配ボックス,TVドアホン,駐輪場,敷地内ゴミ置き場,防犯カメラ,BS,CS,CATV,インターネット,閑静な住宅街

※掲載情報が現況と異なる場合は、現況を優先させていただきます。
※キャンペーン情報は予告なく変更・終了する場合がございます。詳細はお問い合わせください。
※部屋により敷金・礼金・キャンペーンの内容が異なる場合がございますので、詳しい情報は各部屋ページにてご確認ください。
※分譲賃貸は部屋によって所有者が異なる為、内装や設備が変更されている場合がございます。
※ペットの飼育やSOHO利用に関しては、建物自体が許可を出していても、所有者の意向により禁止とされている場合もございますのでご注意ください。

口コミ・評判

※これらの口コミは、ご成約者様や営業スタッフによる主観的な意見や感想です。建物の価値を客観的に評価するものではありません。あくまでも一つの参考としてご活用ください。

成約済み住戸一覧
その他18件を表示

岩本町駅の新着(18件)

おすすめ物件情報

ヴァンクール岩本町 の空室確認などはこちら

空室確認・内覧予約・空き待ちをご希望のお客様は、こちらよりお気軽にお問い合わせください。

03-6890-7755
【麻布店】
水曜定休 10時~19時
問い合わせる
閉じる

検討中リストに追加しました。

ページ上部の検討中リストより、追加した部屋情報が確認できます。

ページ上部の検討中リストより、追加した部屋情報が確認できます。