

フリーレント+仲介手数料無料+礼金0キャンペーン中です。
※キャンペーン内容は売買、賃貸、お部屋により異なります。
備考:
【駐車場】227台
全長5,050mm・全幅1,850mm・全高1,550mm・重量2,000kg 28,700円/月額(税別)
全長5,200mm・全幅1,950mm・全高1,550mm・重量2,200kg 31,500円/月額(税別)
全長4,850mm・全幅1,850mm・全高1,550mm・重量2,000kg 28,700円/月額(税別)
全長5,700mm・全幅2,050mm・全高1,550mm・重量2,300kg 33,000円/月額(税別)
全長5,700mm・全幅1,950mm・全高2,000mm・重量2,300kg 40,000円/月額(税別)
【駐輪場】有
【共用施設】
10棟
1階 キッズラウンジ 月~土 10時~19時 無料
1階 TATAMI-うさぎの間-(和室) 全日 10時~19時 300円/h 最大1日3時間
1階 Multi Studio(多目的スタジオ) 全日 10時~19時 500円/h 最大1日3時間
37階 スカイラウンジ (10棟入居者限定) 全日 9時30分~20時30分 無料 パーティールーム 全日 10時~20時 3,000円/h 最大1日3時間 1日2組まで
6棟
2階 コワーキングスペース 全日 8時30分~19時 無料
2階 コワーキングスペース 500円/h 最大1日3時間
【こちらもご覧下さい(敷地内別棟)】
リバーシティ21新川
リバーシティ21イーストタワーズ2 ※駐輪場・バイク置き場・駐車場の空き状況等詳細につきましてはお問い合わせください。
エレベーター,オートロック,宅配ボックス,TVドアホン,トランクルーム,駐車場,大型駐車場,駐輪場,ラウンジ,キッズルーム,パーティールーム,敷地内ゴミ置き場,内廊下,防犯カメラ,BS,CS,CATV,インターネット
※掲載情報が現況と異なる場合は、現況を優先させていただきます。
※キャンペーン情報は予告なく変更・終了する場合がございます。詳細はお問い合わせください。
※部屋により敷金・礼金・キャンペーンの内容が異なる場合がございますので、詳しい情報は各部屋ページにてご確認ください。
※分譲賃貸は部屋によって所有者が異なる為、内装や設備が変更されている場合がございます。
※ペットの飼育やSOHO利用に関しては、建物自体が許可を出していても、所有者の意向により禁止とされている場合もございますのでご注意ください。
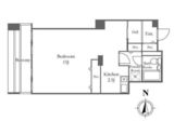
(30代/男性/3LDK)
2020/09/13
思っていたよりもよく生活に便利そうでした。
立地と広さがよく成約いたしました。
営業さんには丁寧な対応をしていただき、非常に良かったです。
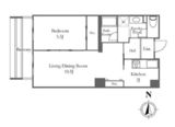
(20代/男性)
2020/03/17
想像より広いお部屋でした。現在より広いお部屋に住みたかったので良かったです。共用部、設備や内装は印象通り。担当してくださった方の対応も迅速かつ丁寧な対応でよかったです。ありがとうございました。
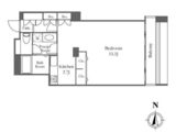
(男性/1LDK)
2018/03/17
以前から住みたかった物件。
設備などは特に問題なし。
※これらの口コミは、ご成約者様や営業スタッフによる主観的な意見や感想です。建物の価値を客観的に評価するものではありません。あくまでも一つの参考としてご活用ください。
空室確認・内覧予約・空き待ちをご希望のお客様は、こちらよりお気軽にお問い合わせください。
03-6890-7755