

エレベーター,オートロック,宅配ボックス,TVドアホン,駐車場,大型駐車場,駐輪場,敷地内ゴミ置き場,内廊下,防犯カメラ,BS,CS,CATV,インターネット
※掲載情報が現況と異なる場合は、現況を優先させていただきます。
※キャンペーン情報は予告なく変更・終了する場合がございます。詳細はお問い合わせください。
※部屋により敷金・礼金・キャンペーンの内容が異なる場合がございますので、詳しい情報は各部屋ページにてご確認ください。
※分譲賃貸は部屋によって所有者が異なる為、内装や設備が変更されている場合がございます。
※ペットの飼育やSOHO利用に関しては、建物自体が許可を出していても、所有者の意向により禁止とされている場合もございますのでご注意ください。
村上(男性)
2016/07/22
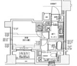
ご案内したのは1LDKタイプのお部屋です。分譲タイプならではの充実した設備が印象的でした。
ご案内した最上階のお部屋からは向かい側に遮る建物も無く開放的です。外観カラーとマッチした室内の色使いは落ち着きが有ります。綺麗な水回り周辺には収納スペースも多く、料理好きの方には嬉しい物件です。またペット可能と、このエリアでも大変希少な物件です。
※これらの口コミは、ご成約者様や営業スタッフによる主観的な意見や感想です。建物の価値を客観的に評価するものではありません。あくまでも一つの参考としてご活用ください。
空室確認・内覧予約・空き待ちをご希望のお客様は、こちらよりお気軽にお問い合わせください。
03-6890-7755
