

仲介手数料無料+礼金0キャンペーン中です。
※キャンペーン内容は売買、賃貸、お部屋により異なります。
備考:
【駐車場】
66台(平置き1台、機械式65台)
30,000円~/月額
【バイク置場】17台(内ミニバイク用7台)3,000円~/月額
【駐輪場】189台(ラック式、内レンタルサイクル16台)
【ペット】ペット飼育時敷金1ヵ月積み増し ※駐輪場・バイク置き場・駐車場の空き状況等詳細につきましてはお問い合わせください。
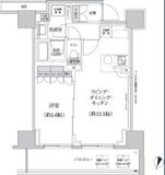
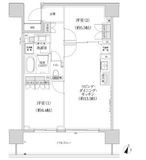
エレベーター,オートロック,宅配ボックス,TVドアホン,駐車場,大型駐車場,バイク置き場,駐輪場,ラウンジ,コンシェルジュ,フィットネスジム,ゲストルーム,パーティールーム,シアタールーム,敷地内ゴミ置き場,各階ゴミ置き場,内廊下,24時間管理,防犯カメラ,BS,CS,CATV,インターネット,閑静な住宅街,楽器可
※掲載情報が現況と異なる場合は、現況を優先させていただきます。
※キャンペーン情報は予告なく変更・終了する場合がございます。詳細はお問い合わせください。
※部屋により敷金・礼金・キャンペーンの内容が異なる場合がございますので、詳しい情報は各部屋ページにてご確認ください。
※分譲賃貸は部屋によって所有者が異なる為、内装や設備が変更されている場合がございます。
※ペットの飼育やSOHO利用に関しては、建物自体が許可を出していても、所有者の意向により禁止とされている場合もございますのでご注意ください。
(20代/男性/1K)
2021/07/31
スーパーが1階にあるのが良かった。
スタッフの方も笑顔で対応していただけました。
(30代/女性/1LDK)
2020/11/20
共有部が広々としていたいいと思いました。室内には必要な設備が完備され、明るくて綺麗な物件だと思います。アクセス環境も良く、タイミング良くいい物件と出会えました。
※これらの口コミは、ご成約者様や営業スタッフによる主観的な意見や感想です。建物の価値を客観的に評価するものではありません。あくまでも一つの参考としてご活用ください。
空室確認・内覧予約・空き待ちをご希望のお客様は、こちらよりお気軽にお問い合わせください。
03-6890-7755