

エレベーター,オートロック,宅配ボックス,TVドアホン,駐車場,バイク置き場,駐輪場,敷地内ゴミ置き場,内廊下,24時間管理,防犯カメラ,BS,CS,CATV,インターネット,閑静な住宅街
※掲載情報が現況と異なる場合は、現況を優先させていただきます。
※キャンペーン情報は予告なく変更・終了する場合がございます。詳細はお問い合わせください。
※部屋により敷金・礼金・キャンペーンの内容が異なる場合がございますので、詳しい情報は各部屋ページにてご確認ください。
※分譲賃貸は部屋によって所有者が異なる為、内装や設備が変更されている場合がございます。
※ペットの飼育やSOHO利用に関しては、建物自体が許可を出していても、所有者の意向により禁止とされている場合もございますのでご注意ください。
(40代/男性/1SLDK)
2016/03/24
良かった。狭かったが。
成約に至った理由は立地。
木野内(女性)
2016/02/20
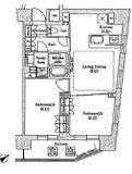
大岡山駅より徒歩8分。環七通り沿いにありとてもわかりやすい立地でした。竣工前の内覧会でしたので見れるお部屋に限りがあり2LDKタイプのみのご案内でした。玄関に隣接する共用廊下やお部屋の玄関がとても広く、お子様のいるご家庭ではベビーカーなどの置き場にも重宝する広さに思えました。1階はテラス付きでバルコニーよりも開放感があり広々としておりました。水回りや室内の随所には収納が設けられており、特にキッチン周りは吊り戸棚付きでご家族が多くても対応出来る収納力だなと感じました。洋室などは梁が少ない造りですので家具の配置なども困らないスッキリとしたお部屋でした。
※これらの口コミは、ご成約者様や営業スタッフによる主観的な意見や感想です。建物の価値を客観的に評価するものではありません。あくまでも一つの参考としてご活用ください。
空室確認・内覧予約・空き待ちをご希望のお客様は、こちらよりお気軽にお問い合わせください。
03-6890-7755