

エレベーター,オートロック,宅配ボックス,TVドアホン,駐輪場,敷地内ゴミ置き場,防犯カメラ,BS,CS,CATV,インターネット
※掲載情報が現況と異なる場合は、現況を優先させていただきます。
※キャンペーン情報は予告なく変更・終了する場合がございます。詳細はお問い合わせください。
※部屋により敷金・礼金・キャンペーンの内容が異なる場合がございますので、詳しい情報は各部屋ページにてご確認ください。
※分譲賃貸は部屋によって所有者が異なる為、内装や設備が変更されている場合がございます。
※ペットの飼育やSOHO利用に関しては、建物自体が許可を出していても、所有者の意向により禁止とされている場合もございますのでご注意ください。
中原(男性)
2016/08/27
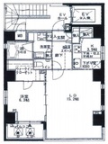
「東銀座駅」3番出口は歌舞伎座と直結しており、歌舞伎座から直進で3分程の距離でした。昭和通りや晴海通りには面しておらず、駅からの距離を考えると意外と落着いた印象を受けます。ワンフロア1住戸の設計と、四方にそれぞれ窓があることで風通しが確保され、開放的な空間が更に心地良さを感じさせます。ウォークインクローゼットを含め、細かい場所に多くの収納があることもプラスのポイントでした。
※これらの口コミは、ご成約者様や営業スタッフによる主観的な意見や感想です。建物の価値を客観的に評価するものではありません。あくまでも一つの参考としてご活用ください。
空室確認・内覧予約・空き待ちをご希望のお客様は、こちらよりお気軽にお問い合わせください。
03-6890-7755