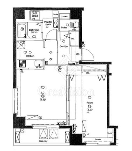
• ベレール日本橋兜町 7階 間取り図
  • ベレール日本橋兜町 7階 間取り図
  • 間取り (1枚)