

エレベーター,オートロック,宅配ボックス,TVドアホン,駐輪場,内廊下,防犯カメラ,BS,CATV,インターネット
※掲載情報が現況と異なる場合は、現況を優先させていただきます。
※キャンペーン情報は予告なく変更・終了する場合がございます。詳細はお問い合わせください。
※部屋により敷金・礼金・キャンペーンの内容が異なる場合がございますので、詳しい情報は各部屋ページにてご確認ください。
※分譲賃貸は部屋によって所有者が異なる為、内装や設備が変更されている場合がございます。
※ペットの飼育やSOHO利用に関しては、建物自体が許可を出していても、所有者の意向により禁止とされている場合もございますのでご注意ください。
(40代/女性/1LDK)
2022/04/18
立地の良さと室内がきれいだったため成約に至りました。
吉田(男性)
2022/03/26
東京を代表する主要ターミナル駅である「渋谷駅」より徒歩4分、宮益坂を青山学院方面へ登る途中に当物件はございました。
10分ほど足を延ばせば「表参道駅」も利用可能な好立地です。
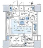
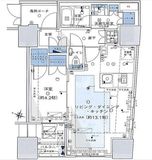
今回内覧した13階1LDKのお部屋は、ややコンパクトな印象でしたが、ウォークインクローゼットと複数の壁面収納があるため収納力が高く、最上階の東向きの窓辺は日当たり・眺望共に良好でした。
土地柄騒音を気にされる方もいらっしゃるかと思いますが、美竹エリアにもほど近い当物件は窓を空けてもほとんど音は気になりませんでした。
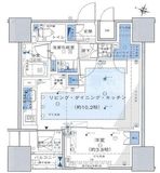
間取りのタイプは1Rから1LDKのご用意があるので、単身からDINKSまで、都会的な生活を送り方には大変おすすめな物件です。
※これらの口コミは、ご成約者様や営業スタッフによる主観的な意見や感想です。建物の価値を客観的に評価するものではありません。あくまでも一つの参考としてご活用ください。
空室確認・内覧予約・空き待ちをご希望のお客様は、こちらよりお気軽にお問い合わせください。
03-6890-7755
