

備考:
【駐車場】2台 35,000円/月額(税抜)
【駐輪場】58台 無料
【インターネット使用料無料】 ※駐輪場・バイク置き場・駐車場の空き状況等詳細につきましてはお問い合わせください。
エレベーター,オートロック,宅配ボックス,TVドアホン,駐車場,駐輪場,敷地内ゴミ置き場,防犯カメラ,BS,CS,CATV,閑静な住宅街
※掲載情報が現況と異なる場合は、現況を優先させていただきます。
※キャンペーン情報は予告なく変更・終了する場合がございます。詳細はお問い合わせください。
※部屋により敷金・礼金・キャンペーンの内容が異なる場合がございますので、詳しい情報は各部屋ページにてご確認ください。
※分譲賃貸は部屋によって所有者が異なる為、内装や設備が変更されている場合がございます。
※ペットの飼育やSOHO利用に関しては、建物自体が許可を出していても、所有者の意向により禁止とされている場合もございますのでご注意ください。
押野(女性)
2022/11/14
東京メトロ半蔵門線「水天宮前」駅より物件へ向かいました。
落ち着いたエリアですが、交通量がある大きな道路沿いを進みますので夜でも暗さは気になりませんでした。
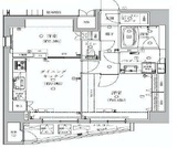
今回は1LDKのお部屋をご案内しました。
向かい側には別のマンションが建っておりますが、思ったより日当たりが良く、お部屋からは隅田川も望めました。
リビング・寝室共にほぼ正方形のため、家具も配置しやすく広々と使えます。
寝室の収納が小さめですが、その分玄関周りの収納が充実しておりました。
キッチンスペースもゆったりとしており、食洗機が備わっているのも嬉しいポイントです。
単身の方にはもちろん、DINKSの方にもおすすめ出来るお部屋です。
※これらの口コミは、ご成約者様や営業スタッフによる主観的な意見や感想です。建物の価値を客観的に評価するものではありません。あくまでも一つの参考としてご活用ください。
空室確認・内覧予約・空き待ちをご希望のお客様は、こちらよりお気軽にお問い合わせください。
03-6890-7755
