

エレベーター,オートロック,宅配ボックス,TVドアホン,バイク置き場,駐輪場,敷地内ゴミ置き場,防犯カメラ,BS,CS,CATV,インターネット,閑静な住宅街
※掲載情報が現況と異なる場合は、現況を優先させていただきます。
※キャンペーン情報は予告なく変更・終了する場合がございます。詳細はお問い合わせください。
※部屋により敷金・礼金・キャンペーンの内容が異なる場合がございますので、詳しい情報は各部屋ページにてご確認ください。
※分譲賃貸は部屋によって所有者が異なる為、内装や設備が変更されている場合がございます。
※ペットの飼育やSOHO利用に関しては、建物自体が許可を出していても、所有者の意向により禁止とされている場合もございますのでご注意ください。
原(男性)
2020/02/24
「恵比寿駅」西口より南へ、駅前の賑やかな繁華街を抜け、時折少し勾配のある坂道を約9分程歩くと閑静な住宅地の中に物件は在りました。
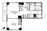
間取りは1K、1LDKの2タイプあり、黒基調のシックなデザインとなっております。
また、お部屋ごとにキッチンの収納の扉の色が異なる(赤、黄)遊び心のあるオシャレな作りとなっております。
尚且つキッチンスペースも広く、不自由なく料理を楽しむ事ができます。
ご案内したお部屋は南向きの2階でしたが、遮蔽物がなく低層階でも日当たりが良い印象を受けました。
※これらの口コミは、ご成約者様や営業スタッフによる主観的な意見や感想です。建物の価値を客観的に評価するものではありません。あくまでも一つの参考としてご活用ください。
空室確認・内覧予約・空き待ちをご希望のお客様は、こちらよりお気軽にお問い合わせください。
03-6890-7755