

仲介手数料無料キャンペーン中です。
※キャンペーン内容は売買、賃貸、お部屋により異なります。
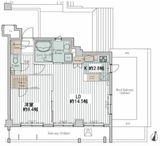
エレベーター,オートロック,宅配ボックス,TVドアホン,駐車場,バイク置き場,駐輪場,敷地内ゴミ置き場,内廊下,防犯カメラ,BS,CS,CATV,インターネット,閑静な住宅街
※掲載情報が現況と異なる場合は、現況を優先させていただきます。
※キャンペーン情報は予告なく変更・終了する場合がございます。詳細はお問い合わせください。
※部屋により敷金・礼金・キャンペーンの内容が異なる場合がございますので、詳しい情報は各部屋ページにてご確認ください。
※分譲賃貸は部屋によって所有者が異なる為、内装や設備が変更されている場合がございます。
※ペットの飼育やSOHO利用に関しては、建物自体が許可を出していても、所有者の意向により禁止とされている場合もございますのでご注意ください。
(30代/男性/1LDK)
2022/01/20
きれいな室内でした。
担当の方のレスポンスも早かったです。
南条(男性)
2021/12/25
東急田園都市線「池尻大橋駅」南口より徒歩9分 大通り沿いに物件はございます。
すぐ近くには緑豊かな世田谷公園、三宿通りにはペット同伴可のお店が連なっており、ペット飼育されている方にも嬉しい環境です。
間取りは1Rから2LDKと幅広く、単身からファミリーの方にもご検討頂けます。
ご案内した1LDKのお部屋は柱や梁が少なく開放感があり、家具の配置もしやすそうでした。
(50代/男性/1LDK)
2019/07/28
全体的に良い。
※これらの口コミは、ご成約者様や営業スタッフによる主観的な意見や感想です。建物の価値を客観的に評価するものではありません。あくまでも一つの参考としてご活用ください。
空室確認・内覧予約・空き待ちをご希望のお客様は、こちらよりお気軽にお問い合わせください。
03-6890-7755