

仲介手数料OFFキャンペーン中です。
※キャンペーン内容は売買、賃貸、お部屋により異なります。
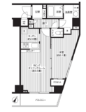
備考:
【駐車場】10台(内身障者用1台)
機械式:27,300円~30,450円/月額 平置き(身障者用):36,750円
全長5,050mm・全幅1,850mm・全高2,100mm・重量2,000kg 2台
全長5,050mm・全幅1,850mm・全高1,550mm・重量2,000kg 4台
全長5,300mm・全幅1,950mm・全高2,100mm・重量2,300kg 1台
全長5,300mm・全幅1,950mm・全高1,550mm・重量2,300kg 2台
【駐輪場】81台 無料
【バイク置き場】6台 3,150円/月額 ※駐輪場・バイク置き場・駐車場の空き状況等詳細につきましてはお問い合わせください。
エレベーター,オートロック,宅配ボックス,TVドアホン,駐車場,大型駐車場,バイク置き場,駐輪場,敷地内ゴミ置き場,内廊下,防犯カメラ,BS,CS,CATV,インターネット,閑静な住宅街
※掲載情報が現況と異なる場合は、現況を優先させていただきます。
※キャンペーン情報は予告なく変更・終了する場合がございます。詳細はお問い合わせください。
※部屋により敷金・礼金・キャンペーンの内容が異なる場合がございますので、詳しい情報は各部屋ページにてご確認ください。
※分譲賃貸は部屋によって所有者が異なる為、内装や設備が変更されている場合がございます。
※ペットの飼育やSOHO利用に関しては、建物自体が許可を出していても、所有者の意向により禁止とされている場合もございますのでご注意ください。
(20代/男性/1LDK)
2018/08/29
想像よりも室内の経年劣化が少なく、特に水回りがきれいでした。部屋からの眺めも良く、広さも充分です。
共用部は整備・管理されている印象でした。
壁が凹凸なくフラットだと尚良しでした。
立地・室内設備・建物の印象、全てが理想に近かったです。
※これらの口コミは、ご成約者様や営業スタッフによる主観的な意見や感想です。建物の価値を客観的に評価するものではありません。あくまでも一つの参考としてご活用ください。
空室確認・内覧予約・空き待ちをご希望のお客様は、こちらよりお気軽にお問い合わせください。
03-6890-7755