

仲介手数料OFF+礼金0キャンペーン中です。
※キャンペーン内容は売買、賃貸、お部屋により異なります。
エレベーター,オートロック,宅配ボックス,TVドアホン,敷地内ゴミ置き場,防犯カメラ,BS,CS,CATV,インターネット
※掲載情報が現況と異なる場合は、現況を優先させていただきます。
※キャンペーン情報は予告なく変更・終了する場合がございます。詳細はお問い合わせください。
※部屋により敷金・礼金・キャンペーンの内容が異なる場合がございますので、詳しい情報は各部屋ページにてご確認ください。
※分譲賃貸は部屋によって所有者が異なる為、内装や設備が変更されている場合がございます。
※ペットの飼育やSOHO利用に関しては、建物自体が許可を出していても、所有者の意向により禁止とされている場合もございますのでご注意ください。
長澤(男性)
2024/03/18
東急東横線「祐天寺」駅、東口を出た目の前のところに建つデザイナーズマンションです。
周辺には向かいにTokyu Store、横並びにはセブンイレブン、まいばすけっとと日々のお買い物には困らない環境です。
共用部はコンクリート調の吹き抜けになっており、1歩足を踏み入れただけでどこか秘密基地のようなワクワク感を感じます。
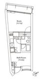
今回は西向きの1DKタイプをご案内しました。36平米に対し居室が6.5畳と若干の狭さを感じるかと懸念しておりましたが、その分キッチンや脱衣所にスペースを取っているため生活スペースには困らなそうです。
室内はコンクリート打ちっぱなしの壁面や木目調の天井だったりと、デザイナーズらしいスタイリッシュなデザインです。
他にはないユニークさを求める方におすすめの物件です。
※これらの口コミは、ご成約者様や営業スタッフによる主観的な意見や感想です。建物の価値を客観的に評価するものではありません。あくまでも一つの参考としてご活用ください。
空室確認・内覧予約・空き待ちをご希望のお客様は、こちらよりお気軽にお問い合わせください。
03-6890-7755