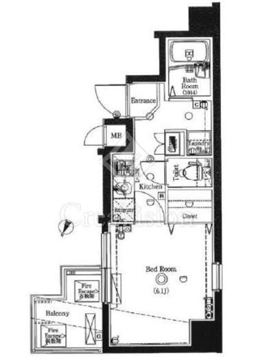
• アクサス新宿若松町Sta. 4階 間取り図
  • アクサス新宿若松町Sta. 4階 間取り図
  • 間取り (1枚)