ブリリアイスト洗足池の杜 211

  • 仲介手数料無料
  • 礼金0
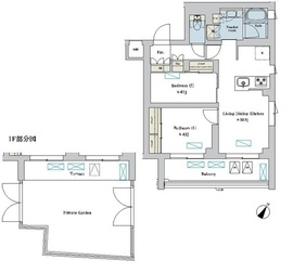
  • ブリリアイスト洗足池の杜 211 間取り図
  • ブリリアイスト洗足池の杜 画像
  • ブリリアイスト洗足池の杜 写真
  • ブリリアイスト洗足池の杜 外観 物件画像3
  • ブリリアイスト洗足池の杜 外観 物件画像4
  • ブリリアイスト洗足池の杜 外観 物件画像5
建物詳細ページを見る

物件概要

物件名
ブリリアイスト洗足池の杜
賃料
236,000円
共益費/
管理費
20,000円
敷金
1ヶ月
礼金
0ヶ月
仲介
手数料
0ヶ月
フリー
レント
0ヶ月
間取り
2LDK
(LDK10.8帖,洋室4.9帖,洋室4.1帖)
専有面積
48.86m2
所在階/
総階数
2階/地上5階 
入居
可能時期
即入居
情報登録日
2026年2月17日
情報更新日
2026年4月21日
所在地
東京都大田区東雪谷1-9-13地図
交通
東急池上線石川台駅」徒歩4分
東急池上線洗足池駅」徒歩5分
東急目黒線大岡山駅」徒歩15分

問合番号
17925-211
物件特徴
低層マンション、ペット可
更新料
1ヶ月
築年月
2026年3月
総戸数
42戸
建物構造
木造
保険
要加入
保証会社
利用必須
方角
南東
契約形態
普通賃貸借契約
ペット
可 
SOHO・
事務所
不可 
取引態様
媒介

備考:

more

建物設備

エレベーター,オートロック,宅配ボックス,TVドアホン,駐車場,バイク置き場,駐輪場,ラウンジ,敷地内ゴミ置き場,内廊下,防犯カメラ,BS,CS,CATV,インターネット

部屋設備

独立洗面台,ウォシュレット,浴室乾燥機,システムキッチン,カウンターキッチン,ガスコンロ,エアコン,ダブルロックキー,フローリング,角部屋,南向き

募集中住戸一覧

20室表示

その他17件を表示

チェックした部屋について

問い合わせる 検討中リストに追加

※掲載情報が現況と異なる場合は、現況を優先させていただきます。
※キャンペーン情報は予告なく変更・終了する場合がございます。詳細はお問い合わせください。
※部屋により敷金・礼金・キャンペーンの内容が異なる場合がございますので、詳しい情報は各部屋ページにてご確認ください。
※分譲賃貸は部屋によって所有者が異なる為、内装や設備が変更されている場合がございます。
※ペットの飼育やSOHO利用に関しては、建物自体が許可を出していても、所有者の意向により禁止とされている場合もございますのでご注意ください。

おすすめ物件情報

ブリリアイスト洗足池の杜211について

問い合わせる 電話する 検討中リスト
に追加
閉じる

検討中リストに追加しました。

ページ上部の検討中リストより、追加した部屋情報が確認できます。

ページ上部の検討中リストより、追加した部屋情報が確認できます。