

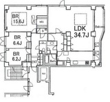
エレベーター,オートロック,宅配ボックス,TVドアホン,駐車場,バイク置き場,敷地内ゴミ置き場,内廊下,防犯カメラ,BS,CS,CATV,インターネット,閑静な住宅街
※掲載情報が現況と異なる場合は、現況を優先させていただきます。
※キャンペーン情報は予告なく変更・終了する場合がございます。詳細はお問い合わせください。
※部屋により敷金・礼金・キャンペーンの内容が異なる場合がございますので、詳しい情報は各部屋ページにてご確認ください。
※分譲賃貸は部屋によって所有者が異なる為、内装や設備が変更されている場合がございます。
※ペットの飼育やSOHO利用に関しては、建物自体が許可を出していても、所有者の意向により禁止とされている場合もございますのでご注意ください。
高橋(男性)
2019/09/22
都営大江戸線・東京メトロ南北線「麻布十番駅」徒歩10分、都営三田線・東京メトロ南北線「白金高輪駅」徒歩14分、「広尾駅」も徒歩圏内、閑静な住宅街に位置する高級賃貸マンションです。南麻布1丁目アドレスで、麻布十番商店街や有栖川公園などがあり休日も過ごしやすい環境です。物件には管理人が常駐しており、セキュリティー面ではオートロック等、ファミリーにも安心です。お部屋に冷蔵庫や洗濯乾燥機が完備されている点や、ペット飼育相談可能な点もおすすめです。
※これらの口コミは、ご成約者様や営業スタッフによる主観的な意見や感想です。建物の価値を客観的に評価するものではありません。あくまでも一つの参考としてご活用ください。
空室確認・内覧予約・空き待ちをご希望のお客様は、こちらよりお気軽にお問い合わせください。
03-6890-7755