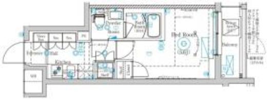
• MIND武蔵中原 210 間取り図
  • MIND武蔵中原 物件写真 建物写真1
  • MIND武蔵中原 210 間取り図
  • MIND武蔵中原 物件写真 建物写真1
  • 間取り (1枚)
  • 物件写真 (1枚)