

仲介手数料無料キャンペーン中です。
※キャンペーン内容は売買、賃貸、お部屋により異なります。
備考:
【竣工】第Ⅰ期:2006年1月、第Ⅱ期:2008年2月
【駐車場】40,000円~45,000円/月額(税別)
【バイク置き場】8,000円/月額(税別)
【トランクルーム】3,000円~5,000円/月額(税別)
【セキュリティ】ALSOKセキュリティ ※駐輪場・バイク置き場・駐車場の空き状況等詳細につきましてはお問い合わせください。
エレベーター,オートロック,宅配ボックス,TVドアホン,トランクルーム,駐車場,バイク置き場,駐輪場,ラウンジ,敷地内ゴミ置き場,内廊下,24時間管理,防犯カメラ,BS,CS,CATV,インターネット,閑静な住宅街
※掲載情報が現況と異なる場合は、現況を優先させていただきます。
※キャンペーン情報は予告なく変更・終了する場合がございます。詳細はお問い合わせください。
※部屋により敷金・礼金・キャンペーンの内容が異なる場合がございますので、詳しい情報は各部屋ページにてご確認ください。
※分譲賃貸は部屋によって所有者が異なる為、内装や設備が変更されている場合がございます。
※ペットの飼育やSOHO利用に関しては、建物自体が許可を出していても、所有者の意向により禁止とされている場合もございますのでご注意ください。
村上(男性)
2016/08/30
「国立競技場駅」、「千駄ヶ谷駅」から徒歩5分程の場所に位置します。
駅から物件までは緩やかな坂道の、緑が多く有り自然を感じられる道のりです。
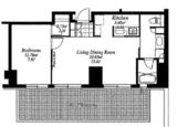
ご案内したお部屋は1Kタイプの北向きのお部屋です。
一見、北向きのお部屋と聞くと陽当りの心配が有りましたが、特に部屋が暗いといった印象も無く、目の前には東京体育館があるだけで高い建物も無く開放感有る眺望です。
居室は柱があり、デッドスペースが多く出る可能性がありますが家具の配置を工夫することで防げる印象でした。
※これらの口コミは、ご成約者様や営業スタッフによる主観的な意見や感想です。建物の価値を客観的に評価するものではありません。あくまでも一つの参考としてご活用ください。
空室確認・内覧予約・空き待ちをご希望のお客様は、こちらよりお気軽にお問い合わせください。
03-6890-7755