

仲介手数料無料+礼金0キャンペーン中です。
※キャンペーン内容は売買、賃貸、お部屋により異なります。
エレベーター,オートロック,宅配ボックス,TVドアホン,駐車場,駐輪場,敷地内ゴミ置き場,防犯カメラ,BS,CS,CATV,インターネット
※掲載情報が現況と異なる場合は、現況を優先させていただきます。
※キャンペーン情報は予告なく変更・終了する場合がございます。詳細はお問い合わせください。
※部屋により敷金・礼金・キャンペーンの内容が異なる場合がございますので、詳しい情報は各部屋ページにてご確認ください。
※分譲賃貸は部屋によって所有者が異なる為、内装や設備が変更されている場合がございます。
※ペットの飼育やSOHO利用に関しては、建物自体が許可を出していても、所有者の意向により禁止とされている場合もございますのでご注意ください。
福島(男性)
2025/08/31
京浜急行本線「大森町」駅 から徒歩11分、周辺には「マチノマ大森」という商業施設があり、飲食店、スーパードラッグストアなども揃う便利な立地です。
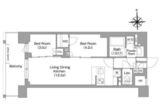
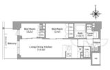
物件は1LDKから2LDKまでのラインナップ、全部屋に食洗機があり、55平米以上の間取りには床暖房もあり、分譲クラスの設備です。
一階にはワークブース付きのラウンジもあり、気分転換もできます。
※これらの口コミは、ご成約者様や営業スタッフによる主観的な意見や感想です。建物の価値を客観的に評価するものではありません。あくまでも一つの参考としてご活用ください。
空室確認・内覧予約・空き待ちをご希望のお客様は、こちらよりお気軽にお問い合わせください。
03-6890-7755