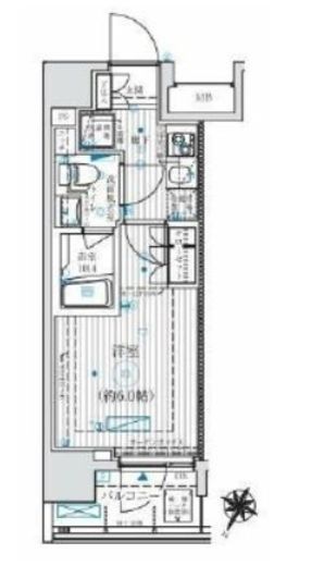
• アーリアシティ川崎 9階 間取り図
  • アーリアシティ川崎 物件写真 建物写真1
  • アーリアシティ川崎 9階 間取り図
  • アーリアシティ川崎 物件写真 建物写真1
  • 間取り (1枚)
  • 物件写真 (1枚)