

備考:
moreエレベーター,オートロック,宅配ボックス,TVドアホン,ペット足洗い場,駐車場,バイク置き場,駐輪場,ラウンジ,キッズルーム,コンシェルジュ,フィットネスジム,ゲストルーム,パーティールーム,ゴルフレンジ,敷地内ゴミ置き場,防犯カメラ,BS,インターネット
独立洗面台,追い焚き,ウォシュレット,浴室乾燥機,システムキッチン,カウンターキッチン,ディスポーザー,食器洗浄機,浄水器,ガスコンロ,床暖房,エアコン,ダブルロックキー,フローリング,角部屋
※掲載情報が現況と異なる場合は、現況を優先させていただきます。
※建物・室内の写真は一部の参考データの為、内装や設備などが異なる場合がございます。
※インターネット、衛星・有線放送などの接続および料金形態につきましては、物件によって異なりますので各事業者へ直接お問い合わせください。また、携帯電話の電波状況は室内にてご使用される携帯電話でご確認をお願いいたします。
※付帯施設、設備や備品等は別途契約や利用料金が掛かる場合もございます。
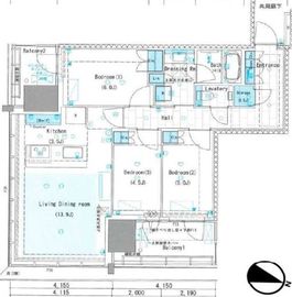
※完成予想図は図面を基に描き起こしたもので、外観や植栽等実際のものとは多少異なる場合があります。
※購入前に物件概要や契約内容について、必ずお客様ご自身で十分にご確認ください。
※掲載されている写真や完成予想図、または間取り図に描かれている家具や車等は価格に含まれません。
※掲載の小学校区は、各自治体が公開している学区データを基に表示したものであり、該当小学校区を保証するものではありません。各自治体にお問合せください。
※マンションにおけるペット飼育は、管理規約によって定められたペットの種類や大きさ、飼育方法等に従ってください。
※掲載の利回り、賃料収入は将来に渡って確実に得られることを保証するものではありません。
※掲載物件は予告なく成約済あるいは販売中止となる場合もございます。
ローンシミュレーション
条件を入力してください