

フリーレント+仲介手数料無料+礼金0キャンペーン中です。
※キャンペーン内容は売買、賃貸、お部屋により異なります。
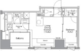
備考:
登記可
通学エリア:本町小学校
【駐車場】30,000円/月額(税別)
【駐輪場】300円~3,000円/月額(税別) ※駐輪場・バイク置き場・駐車場の空き状況等詳細につきましてはお問い合わせください。
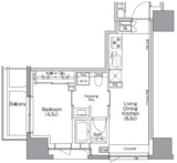
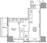
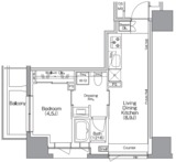
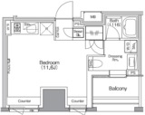
エレベーター,オートロック,宅配ボックス,TVドアホン,駐車場,駐輪場,ラウンジ,敷地内ゴミ置き場,内廊下,インターネット,楽器可
※掲載情報が現況と異なる場合は、現況を優先させていただきます。
※キャンペーン情報は予告なく変更・終了する場合がございます。詳細はお問い合わせください。
※部屋により敷金・礼金・キャンペーンの内容が異なる場合がございますので、詳しい情報は各部屋ページにてご確認ください。
※分譲賃貸は部屋によって所有者が異なる為、内装や設備が変更されている場合がございます。
※ペットの飼育やSOHO利用に関しては、建物自体が許可を出していても、所有者の意向により禁止とされている場合もございますのでご注意ください。
(40代/男性/1R)
2025/04/10
立地、新築など総合的に見てよかった。
(30代/女性/2LDK)
2025/04/24
新築でアクセスが良く、ワーキングスペース等共有部分が充実していたため。
(50代/男性/1R)
2025/09/08
シンプルで落ち着いた色の外観が気に入りました。室内は明るく、広さもちょうど良いです。
※これらの口コミは、ご成約者様や営業スタッフによる主観的な意見や感想です。建物の価値を客観的に評価するものではありません。あくまでも一つの参考としてご活用ください。
空室確認・内覧予約・空き待ちをご希望のお客様は、こちらよりお気軽にお問い合わせください。
045-565-9266