トップへ戻る AZEST関内

16056-1003

AZEST関内 成約済み物件 (16056-1003)

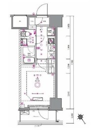
  • AZEST関内 10階 間取り図
  • AZEST関内 物件写真 建物写真1
  • AZEST関内 物件写真 建物写真2
  • AZEST関内 物件写真 建物写真3
  • AZEST関内 物件写真 建物写真4
  • AZEST関内 物件写真 建物写真5
建物詳細ページを見る

物件概要

物件名
AZEST関内
賃料
---円
共益費/
管理費
---円
敷金
---ヶ月
礼金
---ヶ月
仲介
手数料
---ヶ月
フリー
レント
---ヶ月
その他費用
---
間取り
1K
(洋室6.7帖)
専有面積
23.1m2
所在階/
総階数
10階/地上11階 
入居
可能時期
---
情報登録日
2026年1月22日
情報更新日
2026年4月16日
所在地
神奈川県横浜市中区末吉町1-12-1地図
交通
京急本線日ノ出町駅」徒歩5分
ブルーライン伊勢佐木長者町駅」徒歩8分
京急本線黄金町駅」徒歩8分
JR根岸線関内駅」徒歩11分
ブルーライン関内駅」徒歩11分
問合番号
16056-1003
物件特徴
ペット可、分譲賃貸
更新料
---ヶ月
築年月
2023年2月
総戸数
80戸
建物構造
RC造
保険
要加入
保証会社
利用必須
方角
北東
契約形態
普通賃貸借契約
ペット
可 
SOHO・
事務所
不可 
取引態様
媒介

備考:

more

建物設備

エレベーター,オートロック,宅配ボックス,TVドアホン,バイク置き場,駐輪場,敷地内ゴミ置き場,防犯カメラ,BS,CS,CATV,インターネット

部屋設備

独立洗面台,ウォシュレット,浴室乾燥機,システムキッチン,ガスコンロ,エアコン,ダブルロックキー,フローリング

募集中住戸一覧

1室表示

チェックした部屋について

問い合わせる 検討中リストに追加

※掲載情報が現況と異なる場合は、現況を優先させていただきます。
※キャンペーン情報は予告なく変更・終了する場合がございます。詳細はお問い合わせください。
※部屋により敷金・礼金・キャンペーンの内容が異なる場合がございますので、詳しい情報は各部屋ページにてご確認ください。
※分譲賃貸は部屋によって所有者が異なる為、内装や設備が変更されている場合がございます。
※ペットの飼育やSOHO利用に関しては、建物自体が許可を出していても、所有者の意向により禁止とされている場合もございますのでご注意ください。

おすすめ物件情報

最近見た物件

閉じる

検討中リストに追加しました。

ページ上部の検討中リストより、追加した部屋情報が確認できます。

ページ上部の検討中リストより、追加した部屋情報が確認できます。