

仲介手数料無料+礼金0キャンペーン中です。
※キャンペーン内容は売買、賃貸、お部屋により異なります。
エレベーター,オートロック,宅配ボックス,TVドアホン,駐車場,バイク置き場,駐輪場,敷地内ゴミ置き場,防犯カメラ,BS,CS,CATV,インターネット
※掲載情報が現況と異なる場合は、現況を優先させていただきます。
※キャンペーン情報は予告なく変更・終了する場合がございます。詳細はお問い合わせください。
※部屋により敷金・礼金・キャンペーンの内容が異なる場合がございますので、詳しい情報は各部屋ページにてご確認ください。
※分譲賃貸は部屋によって所有者が異なる為、内装や設備が変更されている場合がございます。
※ペットの飼育やSOHO利用に関しては、建物自体が許可を出していても、所有者の意向により禁止とされている場合もございますのでご注意ください。
吉田(男性)
2025/01/14
東急東横線「白楽駅」より徒歩6分、生活利便施設が揃う六角橋商店街を抜けた先に物件はございました。
ビッグターミナル「横浜駅」へも電車で5分ほどでアクセス可能です。
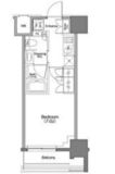
今回内覧した1LDKのお部屋は、WICとカスタムクローゼットを繋げれば大容量のウォークスルーとして使用できるため、荷物の多い方には是非おすすめです。
一方カスタムクローゼット内の備え付けの棚をデスク代わりにすれば、作業スペースとして利用できるなど汎用性の高さも特徴的でした。
また白基調で清潔感のある内装や水回りのグレードにも、お客様は大変喜んでおられました。
ホテルライクな内廊下仕様も嬉しいポイントです。
※これらの口コミは、ご成約者様や営業スタッフによる主観的な意見や感想です。建物の価値を客観的に評価するものではありません。あくまでも一つの参考としてご活用ください。
空室確認・内覧予約・空き待ちをご希望のお客様は、こちらよりお気軽にお問い合わせください。
045-565-9266