

仲介手数料無料+礼金0キャンペーン中です。
※キャンペーン内容は売買、賃貸、お部屋により異なります。
エレベーター,オートロック,宅配ボックス,TVドアホン,駐車場,駐輪場,敷地内ゴミ置き場,防犯カメラ,BS,CS,CATV,インターネット
※掲載情報が現況と異なる場合は、現況を優先させていただきます。
※キャンペーン情報は予告なく変更・終了する場合がございます。詳細はお問い合わせください。
※部屋により敷金・礼金・キャンペーンの内容が異なる場合がございますので、詳しい情報は各部屋ページにてご確認ください。
※分譲賃貸は部屋によって所有者が異なる為、内装や設備が変更されている場合がございます。
※ペットの飼育やSOHO利用に関しては、建物自体が許可を出していても、所有者の意向により禁止とされている場合もございますのでご注意ください。
原(男性)
2025/03/04
「千歳船橋駅」北口より徒歩8分程のところに物件はありました。
駅構内にら様々なお店が入った商業施設、周辺に大型スーパー、商店街もあり利便性抜群です。
物件は千歳通りと環八通り沿いの人通りに多い場所に建っている為、女性やお子様も安心です。
物件に着くと、重厚感のあるエントランスが迎えてくれます。
廊下はホテルライクな内廊下設計になっており、防犯面もバッチリです。
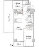
間取りは1LDK-2SLDKがあり、
シングル、ディンクス、ファミリーまで幅広いニーズに対応します。
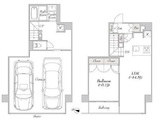
特出すべきは、2階住戸はメゾネットタイプになっており、1階には各住戸に巨大なガレージがあり、大きい車をお持ちの方やDIYをされる方にも最適です。
また、ペットも飼育相談で、大切な家族と一緒に暮らせるのもポイントが高いです。
※これらの口コミは、ご成約者様や営業スタッフによる主観的な意見や感想です。建物の価値を客観的に評価するものではありません。あくまでも一つの参考としてご活用ください。
空室確認・内覧予約・空き待ちをご希望のお客様は、こちらよりお気軽にお問い合わせください。
03-6890-7755