トップへ戻る

クレッセント茅ヶ崎松韻

クレッセント茅ヶ崎松韻

物件概要を見る
  • 借りる(賃貸)
  • 買う(売買)
募集中住戸一覧

0室表示

現在公開中の部屋情報がありません。
最新の情報はこちらからお問い合わせください。

クレッセント茅ヶ崎松韻の最寄り駅 平米単価の相場推移

茅ケ崎駅 平米単価チャート

※当社掲載物件の賃料相場になります
※データがない場合は前後でデータを結んでいます

賃貸募集、売買についてのご相談はこちら

賃貸募集をご検討のオーナー様
クレッセント茅ヶ崎松韻

JR東海道本線「茅ヶ崎駅」徒歩7分のロケーションに建つのは「クレッセント茅ヶ崎松韻」。他にもJR相模線などの複数路線が利用できます。コンビニ、スーパーがあり、商店街にも近いので、毎日の買い物が便利。マンション周辺にはドラッグストア、ショッピングセンターに加えてレストランなどの飲食店も複数点在しています。
茅ヶ崎市美術館に近く、茅ヶ崎海岸も徒歩圏内という住環境。

物件は総戸数87戸、地上7階建てとなっています。鉄筋コンクリート造の建物で、外観はホワイトのタイル張り。共有スペースにセキュリティ性を考慮して防犯カメラ、オートロックを配置し、宅配ボックスとエレベーターも完備しています。

more
  • 借りる(賃貸)
  • 買う(売買)
募集中住戸一覧

0室表示

現在公開中の部屋情報がありません。
最新の情報はこちらからお問い合わせください。

クレッセント茅ヶ崎松韻の最寄り駅 平米単価の相場推移

茅ケ崎駅 平米単価チャート

※当社掲載物件の賃料相場になります
※データがない場合は前後でデータを結んでいます

賃貸募集、売買についてのご相談はこちら

クレッセント茅ヶ崎松韻

JR東海道本線「茅ヶ崎駅」徒歩7分のロケーションに建つのは「クレッセント茅ヶ崎松韻」。他にもJR相模線などの複数路線が利用できます。コンビニ、スーパーがあり、商店街にも近いので、毎日の買い物が便利。マンション周辺にはドラッグストア、ショッピングセンターに加えてレストランなどの飲食店も複数点在しています。
茅ヶ崎市美術館に近く、茅ヶ崎海岸も徒歩圏内という住環境。

物件は総戸数87戸、地上7階建てとなっています。鉄筋コンクリート造の建物で、外観はホワイトのタイル張り。共有スペースにセキュリティ性を考慮して防犯カメラ、オートロックを配置し、宅配ボックスとエレベーターも完備しています。

more

物件概要

物件名
クレッセント茅ヶ崎松韻
所在地
神奈川県茅ヶ崎市中海岸1-2-7地図
交通
JR東海道本線(東京~熱海)茅ケ崎駅」徒歩7分
JR相模線茅ケ崎駅」徒歩7分


問合番号
14922
物件特徴
分譲賃貸
賃料
-
共益費/
管理費
-
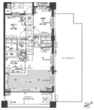
間取り
1SLDK - 2LDK
専有面積
67.88m2 - 72.33m2
築年月
2007年2月
総階数
地上7階 
総戸数
87戸
建物構造
RC造
通学エリア
小学校
茅ヶ崎小学校
取引態様
媒介

備考:

【バイク置き場】有
【駐輪場】有 ※駐輪場・バイク置き場・駐車場の空き状況等詳細につきましてはお問い合わせください。

more

建物設備

エレベーター,オートロック,宅配ボックス,TVドアホン,バイク置き場,駐輪場,敷地内ゴミ置き場,防犯カメラ,BS,CS,CATV,インターネット

※掲載情報が現況と異なる場合は、現況を優先させていただきます。
※キャンペーン情報は予告なく変更・終了する場合がございます。詳細はお問い合わせください。
※部屋により敷金・礼金・キャンペーンの内容が異なる場合がございますので、詳しい情報は各部屋ページにてご確認ください。
※分譲賃貸は部屋によって所有者が異なる為、内装や設備が変更されている場合がございます。
※ペットの飼育やSOHO利用に関しては、建物自体が許可を出していても、所有者の意向により禁止とされている場合もございますのでご注意ください。

口コミ・評判

※これらの口コミは、ご成約者様や営業スタッフによる主観的な意見や感想です。建物の価値を客観的に評価するものではありません。あくまでも一つの参考としてご活用ください。

茅ケ崎駅の新着(1件)

おすすめ物件情報

最近見た物件

クレッセント茅ヶ崎松韻 の空室確認などはこちら

空室確認・内覧予約・空き待ちをご希望のお客様は、こちらよりお気軽にお問い合わせください。

045-565-9266
【横浜店】
水曜定休 10時~19時
問い合わせる

賃貸募集、売買についてのご相談はこちら

賃貸募集をご検討のオーナー様
閉じる

検討中リストに追加しました。

ページ上部の検討中リストより、追加した部屋情報が確認できます。

ページ上部の検討中リストより、追加した部屋情報が確認できます。