

仲介手数料無料+礼金0キャンペーン中です。
※キャンペーン内容は売買、賃貸、お部屋により異なります。
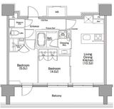
エレベーター,オートロック,宅配ボックス,TVドアホン,トランクルーム,駐車場,バイク置き場,駐輪場,ラウンジ,フィットネスジム,敷地内ゴミ置き場,内廊下,防犯カメラ,BS,CS,CATV,インターネット
※掲載情報が現況と異なる場合は、現況を優先させていただきます。
※キャンペーン情報は予告なく変更・終了する場合がございます。詳細はお問い合わせください。
※部屋により敷金・礼金・キャンペーンの内容が異なる場合がございますので、詳しい情報は各部屋ページにてご確認ください。
※分譲賃貸は部屋によって所有者が異なる為、内装や設備が変更されている場合がございます。
※ペットの飼育やSOHO利用に関しては、建物自体が許可を出していても、所有者の意向により禁止とされている場合もございますのでご注意ください。
中原(男性)
2025/08/03
東京メトロ東西線「行徳駅」から徒歩30秒の場所に建つ駅近物件のご紹介です。
1階部分にはスーパーが入り、周辺は商業施設や飲食店が立ち並びます。
共用施設として、個室タイプのワークラウンジとフィットネスが入っており、在宅ワークが多い方にお勧めです。
内廊下設計を採用しており、セキュリティ性能も高く、機械式駐車場も完備されています。
都心部から少し離れることで比較的リーズナブルな賃料設定のため、物件のグレード重視でお探しの方は是非ご検討ください。
※これらの口コミは、ご成約者様や営業スタッフによる主観的な意見や感想です。建物の価値を客観的に評価するものではありません。あくまでも一つの参考としてご活用ください。
空室確認・内覧予約・空き待ちをご希望のお客様は、こちらよりお気軽にお問い合わせください。
03-6890-7755