

仲介手数料無料キャンペーン中です。
※キャンペーン内容は売買、賃貸、お部屋により異なります。
備考:
【駐車場】
29台(平置15台、機械式14台)
平置:52,500円/月額 機械式:46,200円/月額
※平置(9~12階の方)、機械式46,200円(3~8階の方)
【駐輪場】131台 ※駐輪場・バイク置き場・駐車場の空き状況等詳細につきましてはお問い合わせください。
エレベーター,オートロック,宅配ボックス,TVドアホン,駐輪場,敷地内ゴミ置き場,内廊下,防犯カメラ,BS,CS,CATV,インターネット,閑静な住宅街
※掲載情報が現況と異なる場合は、現況を優先させていただきます。
※キャンペーン情報は予告なく変更・終了する場合がございます。詳細はお問い合わせください。
※部屋により敷金・礼金・キャンペーンの内容が異なる場合がございますので、詳しい情報は各部屋ページにてご確認ください。
※分譲賃貸は部屋によって所有者が異なる為、内装や設備が変更されている場合がございます。
※ペットの飼育やSOHO利用に関しては、建物自体が許可を出していても、所有者の意向により禁止とされている場合もございますのでご注意ください。
(40代/女性/1LDK)
2022/04/29
日当たりや間取り、部屋の広さが気に入りました。
奥田(女性)
2017/08/25
物件周辺は落ち着いた住宅街。物件目の前にはバス停があり泉岳寺や五反田、麻布十番までのアクセスも容易です。また自転車置場や駐車場も広くスペースがとられており、置き場所に困ることもなさそうです。
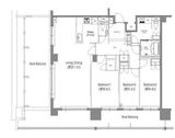
お部屋は柱が少なく使いやすい間取り。収納が大きいのはもちろん、玄関横やパントリーなど、モノが多くなりがちなところに配置されていて使い勝手に配慮されていると感じました。
(20代/男性/1LDK)
2015/03/14
想像よりも景色が良く静かで、スーパーマーケットが近い。
※これらの口コミは、ご成約者様や営業スタッフによる主観的な意見や感想です。建物の価値を客観的に評価するものではありません。あくまでも一つの参考としてご活用ください。
空室確認・内覧予約・空き待ちをご希望のお客様は、こちらよりお気軽にお問い合わせください。
03-6890-7755