

仲介手数料OFFキャンペーン中です。
※キャンペーン内容は売買、賃貸、お部屋により異なります。
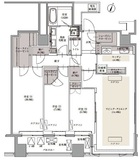
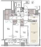
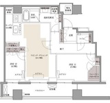
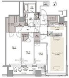
備考:
【駐車場】機械式100台、平置き10台、車椅子利用者用1台
(普通車)40,000円/月額:全長5,300mm・全幅2,050mm・全高1,550mm・重量2,300kg
(ハイルーフ)42,000円/月額:全長5,300mm・全幅2,050mm・全高2,000mm・重量2,300kg
【バイク置場】バイク4台、ミニバイク6台
【駐輪場】167台 ※駐輪場・バイク置き場・駐車場の空き状況等詳細につきましてはお問い合わせください。
エレベーター,オートロック,宅配ボックス,TVドアホン,駐車場,バイク置き場,駐輪場,ラウンジ,コンシェルジュ,敷地内ゴミ置き場,内廊下,オール電化,24時間管理,防犯カメラ,BS,CS,CATV,インターネット,閑静な住宅街,楽器可,免震・制震
※掲載情報が現況と異なる場合は、現況を優先させていただきます。
※キャンペーン情報は予告なく変更・終了する場合がございます。詳細はお問い合わせください。
※部屋により敷金・礼金・キャンペーンの内容が異なる場合がございますので、詳しい情報は各部屋ページにてご確認ください。
※分譲賃貸は部屋によって所有者が異なる為、内装や設備が変更されている場合がございます。
※ペットの飼育やSOHO利用に関しては、建物自体が許可を出していても、所有者の意向により禁止とされている場合もございますのでご注意ください。
(50代/男性/2LDK)
2023/04/30
自宅と同じ建物内で探していて、自室に丁度よい広さ。親身に対応していただきありがとうございました。
楠瀬(男性)
2017/09/24
先日、東京メトロ有楽町線「市ケ谷」徒歩3分の場所に建つ高級分譲マンション「ブランズ四番町」に行って参りました。
建物は免震構造を採用し、管理人とALSOKの24時間管理です。
またエントランスとエレベーターは非接触キーを採用し三重のオートロックで、厳重なセキュリティとなっています。
お部屋の設備はもちろん分譲賃貸マンションならではのハイグレードな設備が整い、日々の生活をサポートします。
駐車場設備もございますので、駐車場付きの物件をお探しの方にもお勧めです。
※これらの口コミは、ご成約者様や営業スタッフによる主観的な意見や感想です。建物の価値を客観的に評価するものではありません。あくまでも一つの参考としてご活用ください。
空室確認・内覧予約・空き待ちをご希望のお客様は、こちらよりお気軽にお問い合わせください。
03-6890-7755
