トップへ戻る ZOOM横浜

12084-406

ZOOM横浜 成約済み物件 (12084-406)

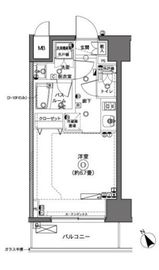
  • ZOOM横浜 4階 間取り図
  • ZOOM横浜 画像
  • ZOOM横浜 写真
  • ZOOM横浜 外観
  • ZOOM横浜 物件写真 建物写真4
  • ZOOM横浜 物件写真 建物写真7
建物詳細ページを見る

物件概要

物件名
ZOOM横浜
賃料
---円
共益費/
管理費
---円
敷金
---ヶ月
礼金
---ヶ月
仲介
手数料
---ヶ月
フリー
レント
---ヶ月
その他費用
---
間取り
1K
(洋室6.7帖)
専有面積
23.21m2
所在階/
総階数
4階/地上11階 地下1階
入居
可能時期
---
情報登録日
2026年1月8日
情報更新日
2026年1月8日
所在地
神奈川県横浜市西区楠町14-19地図
交通
JR湘南新宿ライン横浜駅」徒歩10分
JR京浜東北線横浜駅」徒歩10分
東急東横線横浜駅」徒歩10分

問合番号
12084-406
物件特徴
ペット可
更新料
---ヶ月
築年月
2017年2月
総戸数
131戸
建物構造
SRC造
保険
要加入
保証会社
利用必須
方角
南西
契約形態
普通賃貸借契約
ペット
可 
SOHO・
事務所
不可 
取引態様
媒介

備考:

more

建物設備

エレベーター,オートロック,宅配ボックス,TVドアホン,バイク置き場,駐輪場,敷地内ゴミ置き場,24時間管理,防犯カメラ,BS,CS,CATV,インターネット

部屋設備

独立洗面台,追い焚き,ウォシュレット,浴室乾燥機,システムキッチン,ガスコンロ,エアコン,ダブルロックキー,フローリング,南向き

※掲載情報が現況と異なる場合は、現況を優先させていただきます。
※キャンペーン情報は予告なく変更・終了する場合がございます。詳細はお問い合わせください。
※部屋により敷金・礼金・キャンペーンの内容が異なる場合がございますので、詳しい情報は各部屋ページにてご確認ください。
※分譲賃貸は部屋によって所有者が異なる為、内装や設備が変更されている場合がございます。
※ペットの飼育やSOHO利用に関しては、建物自体が許可を出していても、所有者の意向により禁止とされている場合もございますのでご注意ください。

おすすめ物件情報

最近見た物件

閉じる

検討中リストに追加しました。

ページ上部の検討中リストより、追加した部屋情報が確認できます。

ページ上部の検討中リストより、追加した部屋情報が確認できます。