

エレベーター,オートロック,宅配ボックス,TVドアホン,駐車場,バイク置き場,駐輪場,敷地内ゴミ置き場,防犯カメラ,BS,CS,CATV,インターネット
※掲載情報が現況と異なる場合は、現況を優先させていただきます。
※キャンペーン情報は予告なく変更・終了する場合がございます。詳細はお問い合わせください。
※部屋により敷金・礼金・キャンペーンの内容が異なる場合がございますので、詳しい情報は各部屋ページにてご確認ください。
※分譲賃貸は部屋によって所有者が異なる為、内装や設備が変更されている場合がございます。
※ペットの飼育やSOHO利用に関しては、建物自体が許可を出していても、所有者の意向により禁止とされている場合もございますのでご注意ください。
(20代/女性/1K)
2023/03/03
駅から近く外観も気に入った。
新築で設備も充実していた。
福島(男性)
2023/02/18
東京メトロ丸の内線「四谷三丁目駅」から徒歩3分の物件です。
総戸数127、5階建ての低層マンションになります。
エントランスから廊下など、物件全体は黒を基調としたダークトーンの色使いとなっており、クールな印象です。5階のみ異なりますが、4階までは内廊下仕様です。
物件は通りを入ったところに立っており、車の走行音などはほとんどしませんでした。
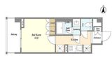
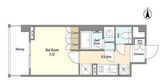
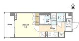
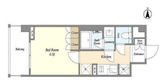
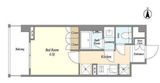
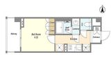
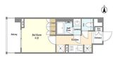
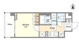
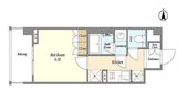
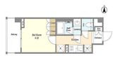
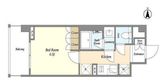
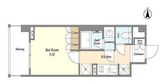
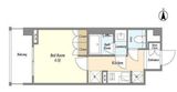
間取りは1Kから2LDKまで用意されており、落ち着いた場所で暮したいファミリーの方や、沿線の利便性を享受されたいビジネスマンの方にもおすすめです。
ご案内をした1Kの南向き住戸は、空調をつけなくとも暖かみを感じる程、お部屋に太陽光が差し込んでおりました。
※これらの口コミは、ご成約者様や営業スタッフによる主観的な意見や感想です。建物の価値を客観的に評価するものではありません。あくまでも一つの参考としてご活用ください。
空室確認・内覧予約・空き待ちをご希望のお客様は、こちらよりお気軽にお問い合わせください。
03-6890-7755