

エレベーター,オートロック,宅配ボックス,TVドアホン,駐車場,大型駐車場,バイク置き場,駐輪場,ラウンジ,敷地内ゴミ置き場,内廊下,防犯カメラ,BS,CS,CATV,インターネット
※掲載情報が現況と異なる場合は、現況を優先させていただきます。
※キャンペーン情報は予告なく変更・終了する場合がございます。詳細はお問い合わせください。
※部屋により敷金・礼金・キャンペーンの内容が異なる場合がございますので、詳しい情報は各部屋ページにてご確認ください。
※分譲賃貸は部屋によって所有者が異なる為、内装や設備が変更されている場合がございます。
※ペットの飼育やSOHO利用に関しては、建物自体が許可を出していても、所有者の意向により禁止とされている場合もございますのでご注意ください。
(20代/男性/1R)
2022/12/24
オートロック、内廊下、スタディルームが気に入りました。新築なのでとてもキレイです。
吉田(男性)
2022/12/15
都営大江戸線 「牛込柳町駅」、都営新宿線「曙橋駅」の両駅が徒歩圏内の立地に当物件はございました。
地上6階地下1階建ての本棟と、地上5階建てのアネックス棟にて構成される大型高級マンションです。
敷地内には大型スーパー「ライフ市谷薬王寺店」があり、共用部にはロビー・ラウンジ・ワークスペース・個別ブース・ルーフガーデンが備わるなど、時代と共に変わるワークスタイルやライフスタイルを充分にサポートします。
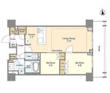
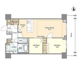
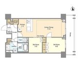
今回内覧した2LDKルーフバルコニー付きのお部屋は、全部屋南向きで採光部がとても広いため、室内は電気をつけなくても充分明るい印象でした。
室内設備に関しても食洗機、床暖房、広々としたWICがあり、日々快適な生活をお送り頂けます。
1K~3LDKの間取りを揃える当物件は、単身からファミリーまで様々なニーズに対応が可能です。
※これらの口コミは、ご成約者様や営業スタッフによる主観的な意見や感想です。建物の価値を客観的に評価するものではありません。あくまでも一つの参考としてご活用ください。
空室確認・内覧予約・空き待ちをご希望のお客様は、こちらよりお気軽にお問い合わせください。
03-6890-7755