

備考:
【駐車場】
・一般:全長5,050mm・全幅1,850mm・全高1,550mm・重量2,000kg 25,000円/月額
・大型:全長5,300mm・全幅1,950mm・全高1,550mm・重量2,300kg 27,000円/月額
・一般セミハイルーフ:全長5,050mm・全幅1,850mm・全高1,800mm・重量2,000kg 24,000円/月額
・大型セミハイルーフ:全長5,300mm・全幅1,950mm・全高1,800mm・重量2,300kg 36,000円/月額
・一般ハイルーフ:全長5,050mm・全幅1,850mm・全高2,100mm・重量2,000kg 25,000円/月額
・大型ハイルーフ:全長5,300mm・全幅1,950mm・全高2,100mm・重量2,300kg 37,000円/月額
【バイク置き場】有
【駐輪場】有
【共用施設】
・ハーブガーデン:1階 24時間開放
・ドッグラン:駐車場棟3階
【4~9月】9時~17時【10~3月】9時~16時
・BBQガーデン:1階 9時~20時
【スペース利用】1,000円/1時間 【BBQセット】1,000円/1回
・サウンドスタジオ:9時~22時 1,000円/1時間
・専用カート:24時間利用可能 コイン式 保証金制100円/1回
・ゲストパーキング:1階 コイン式 100円/15分
・洗車スペース:1階 コイン式 8時~21時
【スペースのみ利用】無料 【洗車シャワー】100円/5分
・パーティールーム:1階 9時~22時
Aキッチン付・Bテレビビデオ機器
【AorB】500円/1時間 【AandB】1,000円/1時間
・キッズプレイルーム:2階
【プレイルーム】7時~19時 【テラス】7時~17時
・ランドリールーム:2階 コイン式 24時間開放
【洗濯機】500円/1回 【乾燥機】100円/6分
【スニーカー洗濯機】200円/1回 【スニーカー乾燥機】100円/20分
・会議室:3階 9時~22時 300円/1時間
・ビューラウンジ:37階 24時間開放
・スカイゲストルーム:37階 15時~翌10時
【A・B】2名様利用 6,000円/1泊 3名様利用 7,500円/1泊
【C・D】2名様利用 6,000円/1泊
【こちらもご覧下さい(敷地内別棟)】
芝浦アイランド グローヴタワー芝浦アイランド ブルームタワー
※駐輪場・バイク置き場・駐車場の空き状況等詳細につきましてはお問い合わせください。
エレベーター,オートロック,宅配ボックス,TVドアホン,駐車場,大型駐車場,バイク置き場,駐輪場,ラウンジ,キッズルーム,コンシェルジュ,フィットネスジム,ゲストルーム,パーティールーム,カーシェアリング,シアタールーム,敷地内ゴミ置き場,内廊下,24時間管理,防犯カメラ,BS,CS,CATV,インターネット,閑静な住宅街,免震・制震
※掲載情報が現況と異なる場合は、現況を優先させていただきます。
※キャンペーン情報は予告なく変更・終了する場合がございます。詳細はお問い合わせください。
※部屋により敷金・礼金・キャンペーンの内容が異なる場合がございますので、詳しい情報は各部屋ページにてご確認ください。
※分譲賃貸は部屋によって所有者が異なる為、内装や設備が変更されている場合がございます。
※ペットの飼育やSOHO利用に関しては、建物自体が許可を出していても、所有者の意向により禁止とされている場合もございますのでご注意ください。
前嶋(女性)
2021/09/15
JR山手線「田町駅」・ゆりかもめ「芝浦ふ頭駅」それぞれ約11分、駅からは少し距離がありますがベイサイドエリアのランドマーク的タワーマンションです。
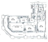
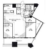
間取りは1K〜3SLDKのお部屋があり、四方を海に囲まれた開放感のある立地で角部屋が多い作りとなっています。
ご案内をした3LDKのお部屋は東京湾ビューで眺望が良く、床暖房やディスポーザーなどの設備はもちろん、大容量の収納スペースが多くお客様もとても気に入られていました。
タワーマンションならではのパーティールームやスカイゲストルーム、1階にはナチュラルローソンが入っており、外に行かず買い物ができるのも嬉しいポイントです。
(30代/男性/1LDK)
2017/12/06
納得するまで沢山の物件をご提案いただきありがとうございました。次の引っ越しの際もお願いしようと思います。
※これらの口コミは、ご成約者様や営業スタッフによる主観的な意見や感想です。建物の価値を客観的に評価するものではありません。あくまでも一つの参考としてご活用ください。
空室確認・内覧予約・空き待ちをご希望のお客様は、こちらよりお気軽にお問い合わせください。
03-6890-7755